EasyManua.ls Logo

Extron electronics VTG 400 - Page 35

Extron electronics VTG 400
86 pages
Print Icon
To Next Page IconTo Next Page
To Next Page IconTo Next Page
To Previous Page IconTo Previous Page
To Previous Page IconTo Previous Page
Loading...
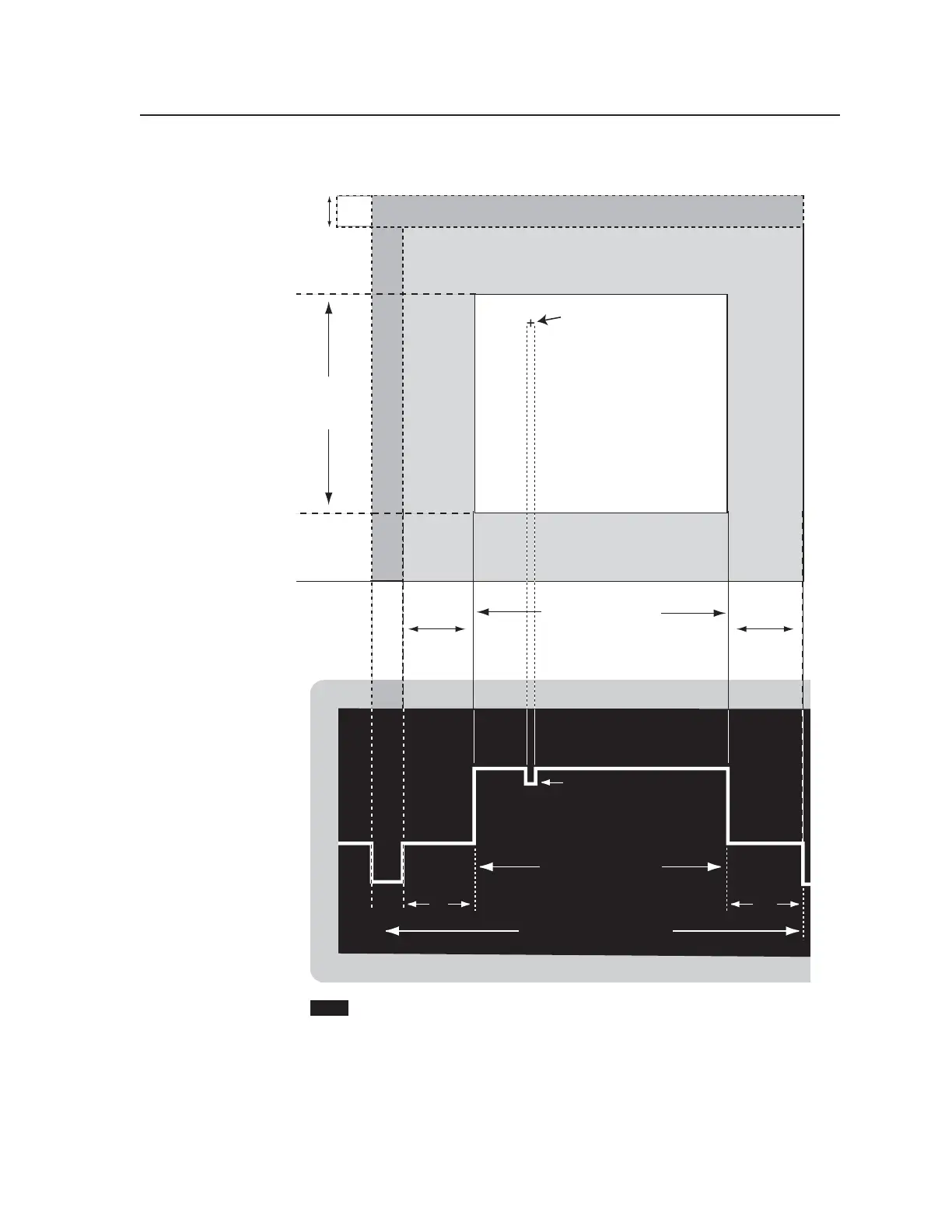
2-25VTG 400/400D • Installation and Operation
Total Video Area
Active Video Area
(visible on screen)
with Flat Field Test Pattern
DISPLAY SCREEN
vertical
back
porch
active
video
lines
active video pixels
vertical
front
porch
horizontal
front porch
horizontal
back porch
active video time
front
porch
time
back
porch
time
horizontal line period
sync
pulse
time
OSCILLOSCOPE SCREEN
crosshairs cursor
at trigger point
trigger point using
crosshairs cursor
Note: The gray area alone equals blanking and is not visible
on the screen.
The combination of front porch, back porch, and sync times equals blanking
vertical
sync
pulse
horizontal
sync
pulse
Note
Oscilloscope trigger point example
im Vertrieb von
CAMBOARD Electronics
www.camboard.de
Tel. 07131 911201
Fax 07131 911203
ce-info@camboard.de

Table of Contents