EasyManua.ls Logo

Fischer Panda 7K PMS - Page 167

Fischer Panda 7K PMS
168 pages
Print Icon
To Next Page IconTo Next Page
To Next Page IconTo Next Page
To Previous Page IconTo Previous Page
To Previous Page IconTo Previous Page
Loading...
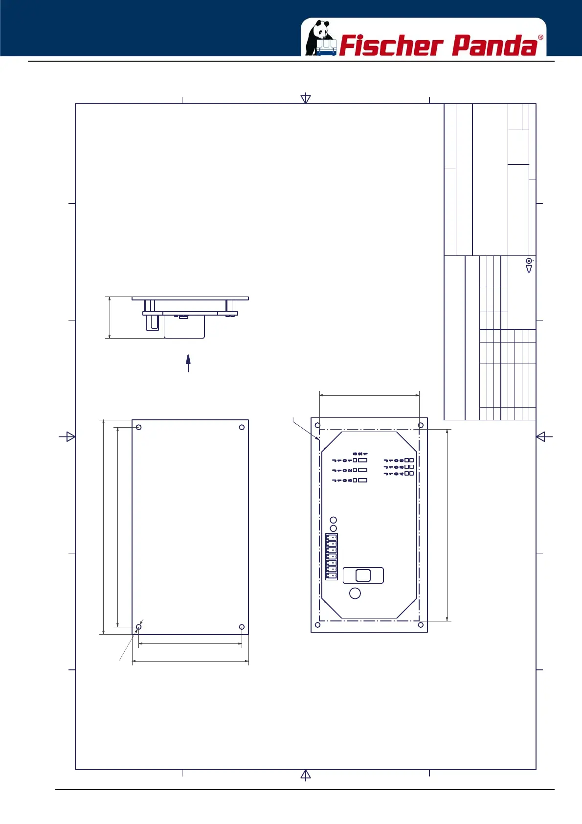
Remote Control Panel P4 Control
22.10.19 Kapitel/Chapter 9: Remote Control Panel P4 Control - Seite/Page 167
A ( 1 : 1 )
A
1
1
2
2
3
3
4
4
5
5
6
6
A A
B B
C C
D D
Zust.
Änderungen
Datum
Name
Datum Name
Bearbeiter
letzte Freigabe
erste Freigabe:
Maßstab:
Material:
Art.-Nr.:
Gewicht:
Ersatz für Ersetzt durch
Blatt
13.01.2016
jschaefers
1 / 1
A3
21.02.02.145P
Fischer Panda GmbH Otto-Hahn-Str. 40 D-33104 Paderborn Tel.: 05254/9202-0
Fax (05254) 9202-550 info@fischerpanda.de www.fischerpanda.de
Allgemeintoleranzen nach
DIN ISO 2768-mK
Schutzvermerk nach
DIN 34 beachten !
Zeichnungs Nr.
FP1-045544
P4-Control Panel konfiguriert 111000 für
P4000S Rev 1
3D-Nr: FP1-027304
Vers.:
Version
PrL:-
Fischer Panda
_
1:1
Verkaufsunterlagen, Änderungen vorbehalten
7
0
120
6
2
129
25
Ausschnittm
6
0
115
P
3

Table of Contents

Related product manuals