EasyManua.ls Logo

Frick QUANTUM - HISTORY TRENDING; Data Log View; Trending View

Frick QUANTUM
116 pages
Print Icon
To Next Page IconTo Next Page
To Next Page IconTo Next Page
To Previous Page IconTo Previous Page
To Previous Page IconTo Previous Page
Loading...
QUANTUM
HD COMPRESSOR CONTROL PANEL
MAINTENANCE
090.040-M (NOV 2016)
Page 87
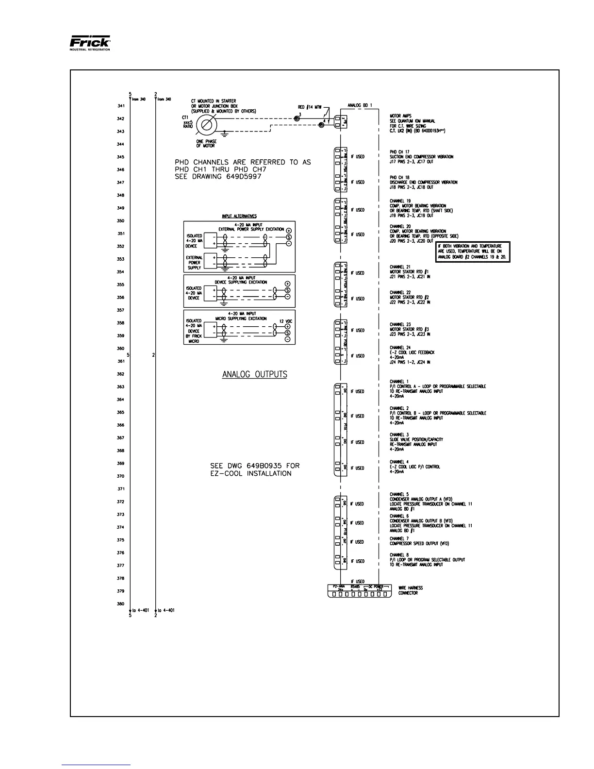
This drawing appears here for reference purposes only, and is subject to change without notice. When installing, or servicing equipment,
always refer to the actual drawings that are included with the control panel for the latest information.
090.040-WD0035.eps
Figure 27e. RXF / RXB Wiring Diagram (Capacity Slide Potentiometer) (6/6)

Table of Contents

Other manuals for Frick QUANTUM

Related product manuals