EasyManua.ls Logo

FULTON Vantage VTG 2000 - Page 44

FULTON Vantage VTG 2000
149 pages
Print Icon
To Next Page IconTo Next Page
To Next Page IconTo Next Page
To Previous Page IconTo Previous Page
To Previous Page IconTo Previous Page
Loading...
© The Fulton Companies 2016
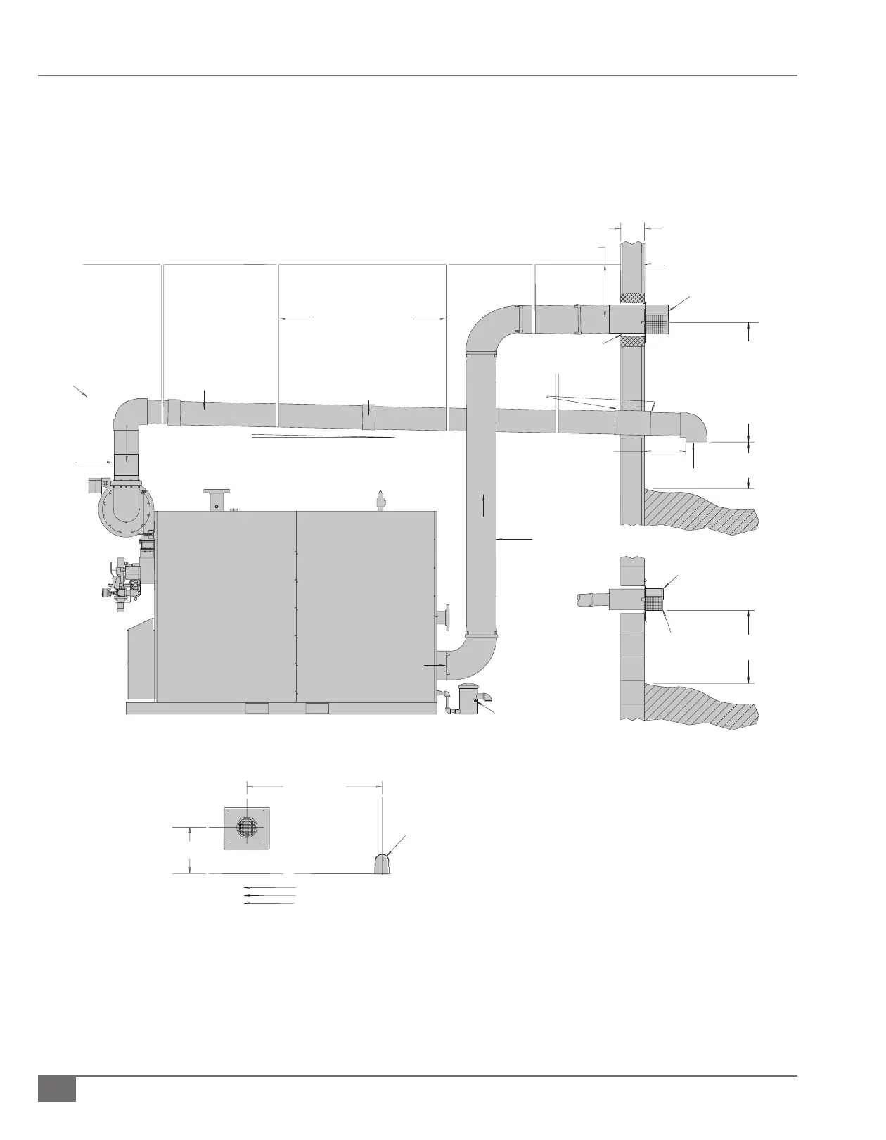
INSTALLATION VTG-IOM-2016-1214 SECTION 2
2-38
EXHAUST
VANTAGE
BOILER
RISE TO RUN: 1/4" PER FOOT
COMBUSTIBLE WALL
PENETRATION DETAIL
NON-COMBUSTIBLE
WALL PENETRATION
PARTIAL DETAIL
STAINLESS STEEL
HIGH TEMPERATURE
EXHAUST PIPE & FITTINGS
INSTALL SUPPORT STRAP AT
5 FT / 150 CM HORIZONTAL
INTERVALS AND AT
INTERMEDIATE ELBOWS
PVC PIPE
COUPLING
PVC
90° ELBOW
AIR INLET
REQUIRED AIR
SPACE CLEARANCE
COMBUSTIBLE WALL
WALL TERMINATION
( WITH SCREEN )
6 IN. / 15 CM
MIN. / MAX. WALL THICKNESS
( 3 1/4 IN. - 20 IN. )
( 8.255 CM - 50.8 CM )
DO NOT PLACE INSULATION IN
REQUIRED AIR SPACE CLEARANCE
BAND SUPPORT
COLLAR
(TYP EACH SIDE)
TERMINATION
SCREENED
( WITH SCREEN )
TERMINATION
1/4" TAPPING FOR WATER
100 PSI MAXIMUM
90° PVC ELBOW
SCREENED AIR INLET
WALL
EXHAUST PIPE
WALL PENETRATION
4 ft. (122 CM)
10 ft (3 m)
(MINIMUM)
AIR INTAKE
WALL PENETRATION
LOCATE INTAKE
UPWIND OF
EXHAUST PIPING
AIR INTAKE & EXHAUST PIPES WALL PENETRATION CLEARANCES
CAUTION:
AIR INTAKE AND EXHAUST TERMINATION SHOULD BE
SEPARATED AS FAR AS POSSIBLE TO PREVENT FLUE GAS
RECIRCULATION DURING DIFFERENT WIND CONDITIONS
4 FT / 122 CM ( MINIMUM )
BETWEEN INLET & EXHAUST
OPENING ( SEE BELOW )
AIR INTAKE AND EXHAUST
TERMINATION SHOULD BE
SEPERATED AS FAR AS
POSSIBLE TO PREVENT FLUE
GAS RECIRCULATION DURING
DIFFERENT WIND CONDITIONS.
OPENING 1 FT / 30 CM ( MIN )
ABOVE NORMALLY EXPECTED
SNOW ACCUMULATION LEVEL
OPENING 1 FT / 30 CM ( MIN )
ABOVE NORMALLY EXPECTED
SNOW ACCUMULATION LEVEL
WIND DIRECTION
RUBBER COUPLING
(REQUIRED)
FIGURE 21  SIDE WALL PENETRATION DETAILS

Table of Contents

Related product manuals