EasyManua.ls Logo

Honeywell H-S81-HS - Page 64

Honeywell H-S81-HS
71 pages
Print Icon
To Next Page IconTo Next Page
To Next Page IconTo Next Page
To Previous Page IconTo Previous Page
To Previous Page IconTo Previous Page
Loading...
Safety Bus Manual — P/N LS10177-000HI-E:B 02/21/2019 64
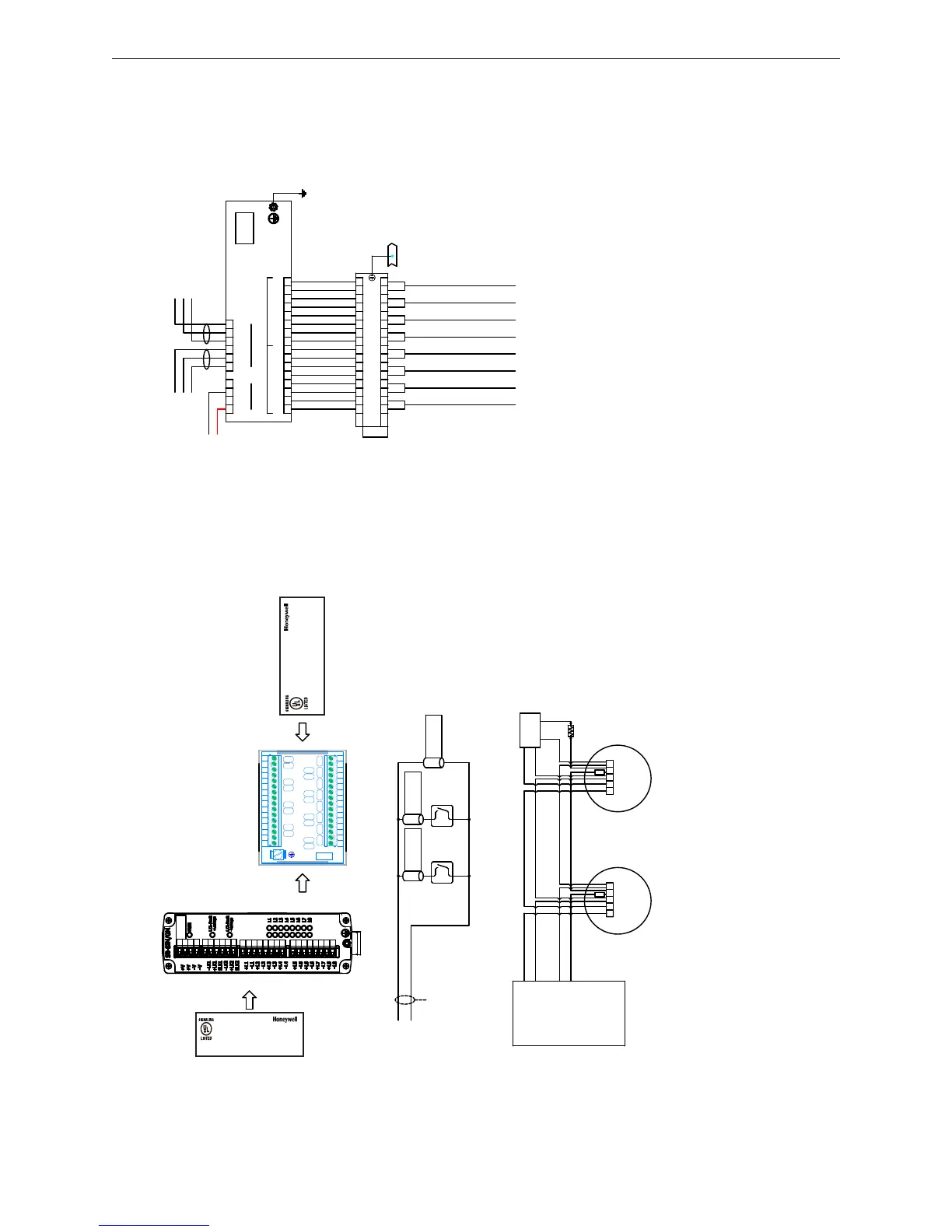
Hardware, Installation, and Wiring Diagrams
SB-SIM/GM
8 Initiating Device Circuits Module
Suppression Board
Use with S81-T9001-1 Transient
123
45
6
7
8
123
45
6
7
8
S81-T9001-1
TB-XX
9 10111213141516
9 10111213141516
BR1
BR2
Initiating Device Circuit 1
+-
Initiating Device Circuit 2
+-
Initiating Device Circuit 3
+-
Initiating Device Circuit 4
+-
Initiating Device Circuit 5
+-
Initiating Device Circuit 6
+-
Initiating Device Circuit 7
+-
Initiating Device Circuit 8
+-
1
2
3
4
5
6
7
8
9
10
11
12
13
14
15
16
-V
-V
+V
+V
TB-1
SLK2
+LK2
-LK2
SLK1
+LK1
-LK1
TB-2
address
SB-SIM-GM
XX
TB-3
-L1
+L1
-L2
+L2
-L3
+L3
-L4
+L4
TB-4
-L5
+L5
-L6
+L6
-L7
+L7
-L8
+L8
123
45
6
7
8 123
45
6
7
8
123
4
123
4
5
6
24VDC
POWER SUPPLY
LK1
FROM PREVIOUS
MODULE
LK2
TO THE NEXT
MODULE
with Ground Monitoring
- ALL CIRCUITS ARE POWER LIMITED AND FULLY SUPERVISED
- WIRING : CLASS B STYLE C AND STYLE B
- TWO WIRE SMOKE DETECTOR HAS NOT BEEN EVALUATED BY UL.
- EOL PN : S81-EOL ; LR PN: S81-LR
- ATTACH THE S81-T9001-1 CARD TO THE DIN RAIL PROVIDED USING THE SNAP FITS
ON THE BOTTOM OF THE MODULES.
- SEE INSTALLATION MANUAL FOR COMPATIBLE DEVICES
- SEE DETECTORS MANUFACTURER MANUAL FOR ALTERNATIVE WIRING OPTIONS
- GAS DETECTOR DEVICE MUST BE UL2075 COMPLIANT
EOL DEVICE
PART NUMBER
S81-EOL
+
-
Initiating Device Circuits
Typical NO/NC contact connection, manual call points
Typical 4-wire detectors connection with 24VDC supervision.
LR DEVICE
PART NUMBER
S81-LR
LR DEVICE
PART NUMBER
S81-LR
IDC
CONTROL UNIT
4-WIRE
AUX OR SMOKE
2
5
3
4
1
(1) + IN
(2) + OUT
(3) - IN/OUT
(4) NO
(5) COM
POWER
2
5
3
4
1
(1) + IN
(2) + OUT
(3) - IN/OUT
(4) NO
(5) COM
LR
+
-
-
+
S81-EOL
EOL
RELAY
(EOLR-1)
LR
1
2
3
4
5
6
7
8
9
10
11
12
13
14
15
16
1
2
3
4
5
6
7
8
9
10
11
12
13
14
15
16
S81-T9001-1-R0
RV17RV18RV19RV21RV20RV22RV23RV24
RV16
RV14
RV12
RV11
RV9
RV7
RV4
RV3
RV15
RV13
RV10
RV8
RV6
RV5
RV2
RV1
BR1BR2
TB1
BT SAFETY EARTH BAR
YE/GN 16AWG
16 OR 18AWG
16 OR 18AWG
16 OR 18AWG
16 OR 18AWG
16 OR 18AWG
16 OR 18AWG
16 OR 18AWG
16 OR 18AWG
16 OR 18AWG
16 OR 18AWG
16 OR 18AWG
16 OR 18AWG
16 OR 18AWG
16 OR 18AWG
16 OR 18AWG
16 OR 18AWG
BS
4KW1
FIRE ALARM SUBASSEMBLY
UOXX
EMERGENCY SIGNALING SUBASSEMBLY
FSYE
INSTALL IN ACCORDANCE WITH INSTALLATION
INSTRUCTIONS LS10177-000HI-E
LS10203-000HI-E:A ECN: 17-XXX
4KW1
FIRE ALARM SUBASSEMBLY
UOJZ
EMERGENCY SIGNALING SUBASSEMBLY
FSZI
INSTALL IN ACCORDANCE WITH INSTALLATION
INSTRUCTIONS LS10139-051HI-E AND
LS10177-000HI-E
LS10202-000HI-E:A ECN: 17-XXX
Figure 7.9 SB-SIM/GM and S81-T9001-1 Subassembly Wiring

Table of Contents

Other manuals for Honeywell H-S81-HS

Related product manuals