EasyManua.ls Logo

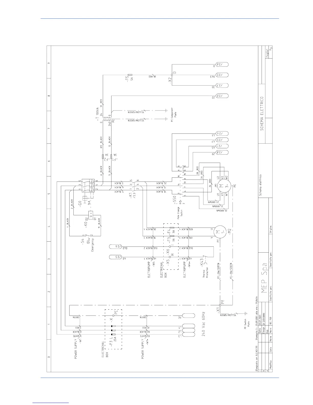
Hyd-Mech DM8 - Standard Version Electrical Diagram 240 V (CSA Standard)

Hyd-Mech DM8
156 pages
Print Icon
To Next Page IconTo Next Page
To Next Page IconTo Next Page
To Previous Page IconTo Previous Page
To Previous Page IconTo Previous Page
Loading...
Version 24DM
Diagrams, exploded views and replacement parts 6-- 15
Standard version electrical diagram 240V (CSA standard)
DM 8 G -- 240/60

Table of Contents