EasyManua.ls Logo

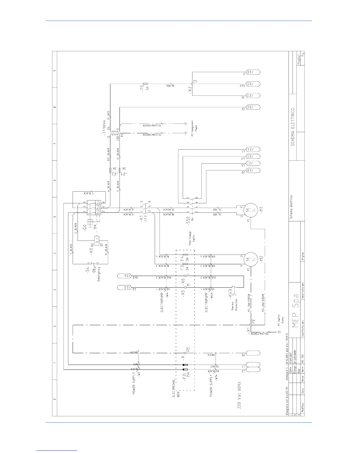
Hyd-Mech DM8 - Standard Version Electrical Diagram 220 V Single

Hyd-Mech DM8
156 pages
Print Icon
To Next Page IconTo Next Page
To Next Page IconTo Next Page
To Previous Page IconTo Previous Page
To Previous Page IconTo Previous Page
Loading...
Version 24DM
Diagrams, exploded views and replacement parts 6-- 31
Standard version electrical diagram 220V Single--Phase (CSA standard)
DM 8 G -- 220 Vac

Table of Contents