EasyManua.ls Logo

Hyd-Mech DM8 - Exploded Views 6

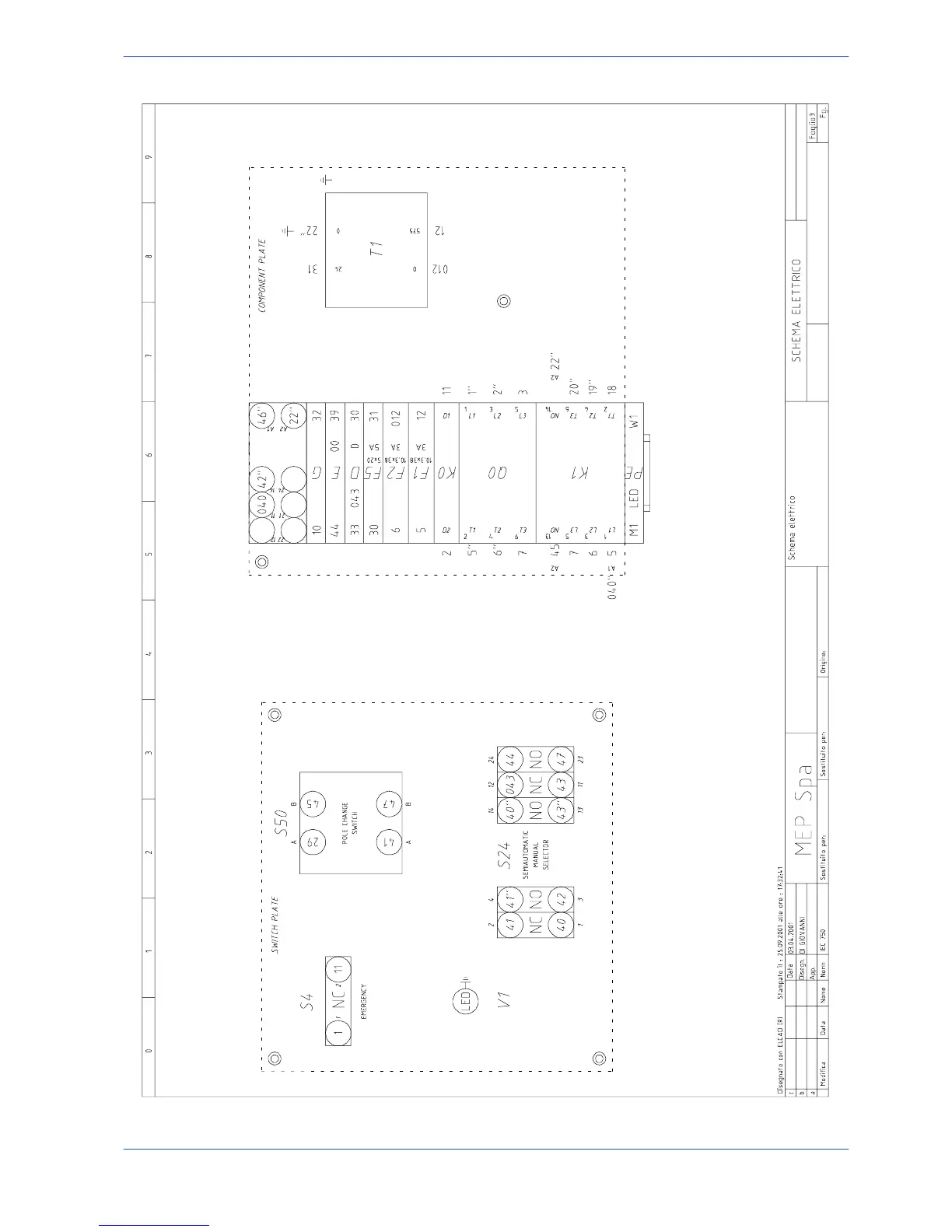
Hyd-Mech DM8
156 pages
Print Icon
To Next Page IconTo Next Page
To Next Page IconTo Next Page
To Previous Page IconTo Previous Page
To Previous Page IconTo Previous Page
Loading...
Version 24DM
Diagrams, exploded views and replacement parts 6-- 25
DM 8 G -- 575/60
K42

Table of Contents