EasyManua.ls Logo

Hyd-Mech DM8 - Page 67

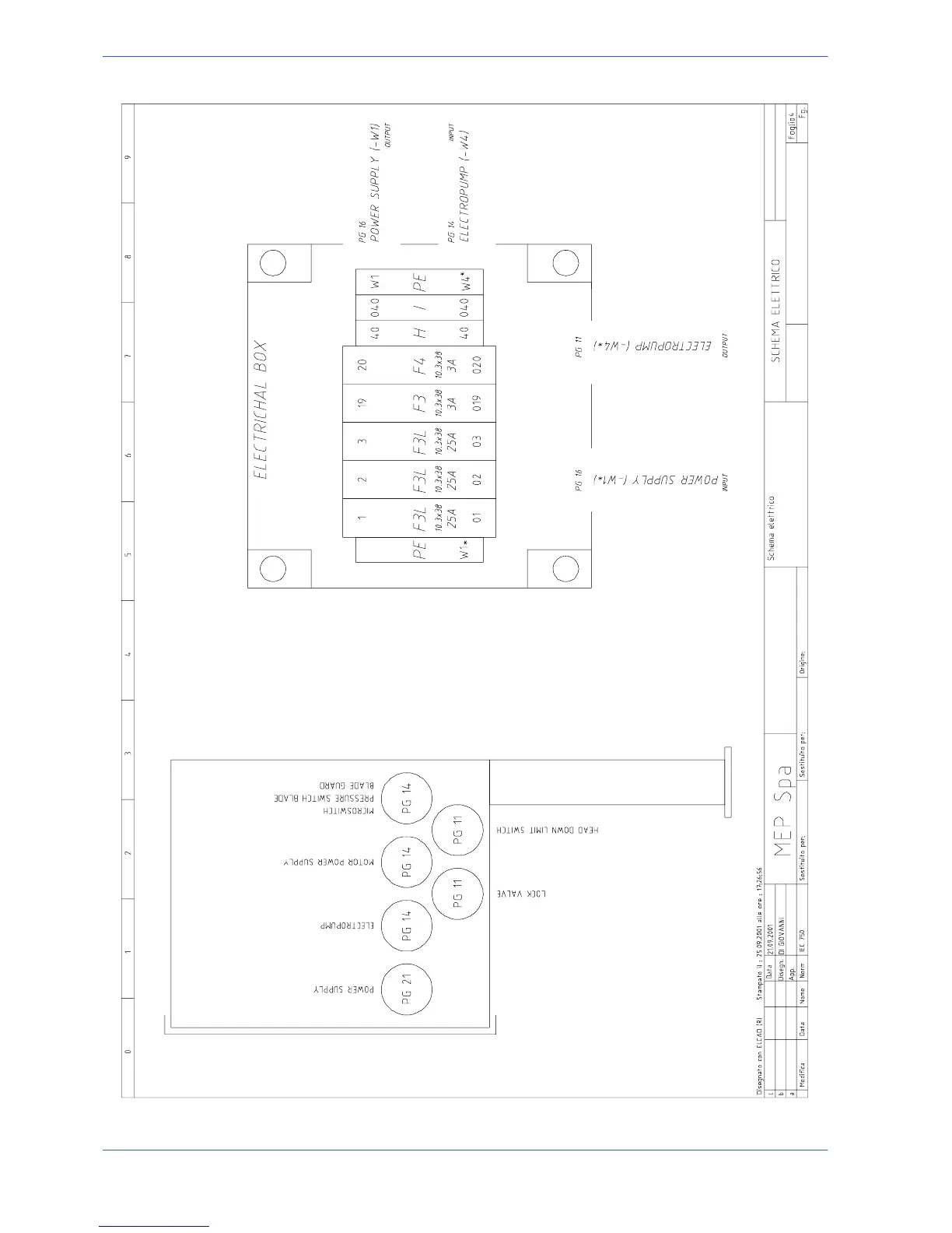
Hyd-Mech DM8
156 pages
Print Icon
To Next Page IconTo Next Page
To Next Page IconTo Next Page
To Previous Page IconTo Previous Page
To Previous Page IconTo Previous Page
Loading...
MEP S.p.A.
6--18 Use and maintenance manual DM 8
DM 8 G -- 240/60

Table of Contents