EasyManua.ls Logo

Interlogix Advisor Advanced ATS2000A-MM - Page 12

Interlogix Advisor Advanced ATS2000A-MM
272 pages
Print Icon
To Next Page IconTo Next Page
To Next Page IconTo Next Page
To Previous Page IconTo Previous Page
To Previous Page IconTo Previous Page
Loading...
2 Advisor Advanced ATSx000A(-IP) Installation and Programming Manual
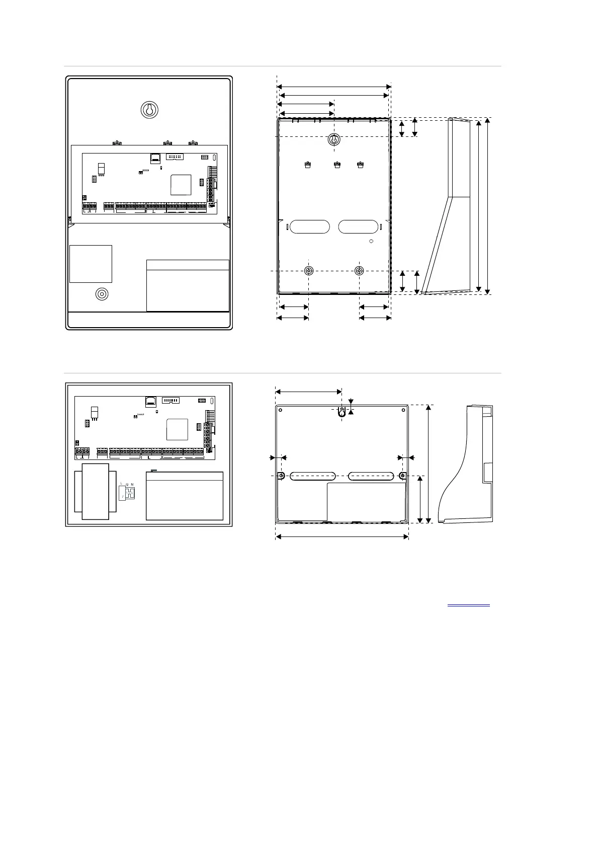
Figure 3: Large polycarbonate housing (-LP)
Figure 4: Small polycarbonate housing (-SP)
For more details on connections and connecting devices to the Advisor
Advanced, see “Cabling Advisor Advancedon page 14.
For details on connecting pry-off tampers, see “Pry-off tamper mountingbelow.
Pry-off tamper mounting
For small (-SM) housing, follow the steps in Figure 5 on page 3 to install pry-off
tamper. For medium (-MM) housing, follow the steps in Figure 6 on page 3.
RxTx
USB
MI
IP
CON12
CON13
T1
T2
S4
S5
+
+
S1
C
+
S2
C
T C
+
+
- -
1 C 2 3 C 4 5 C 6 7 C 8
~
~
+ -
AC
BATT
LC-OUTPUTS
HC-OUTPUTS
SIR TMP AUX POWER
INPUTS
CT
+
S3
C
CON16
NTC
COMMS
+12V 0VD+ D-
259
129.5
73
403
54.5
45.5
73
395
50.5
70
126.5
41.5
70
253
()1
()1 ()1
RxTx
USB
MI
IP
CON12
CON13
T1
T2
S4
S5
+
+
S1
C
+
S2
C
T C
+
+
- -
1 C 2 3 C 4 5 C 6 7 C 8
~
~
+ -
AC
BATT
LC-OUTPUTS
HC-OUTPUTS
SIR TMP AUX POWER
INPUTS
CT
+
S3
C
CON16
NTC
COMMS
+12V 0VD+ D-
256
227
128.5
11.7 11.7
7
91.6

Table of Contents

Related product manuals