EasyManua.ls Logo

Johnson JDMV2W - Page 19

Johnson JDMV2W
Print Icon
To Next Page IconTo Next Page
To Next Page IconTo Next Page
To Previous Page IconTo Previous Page
To Previous Page IconTo Previous Page
Loading...
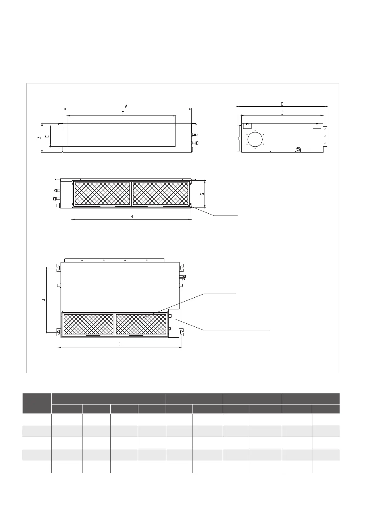
Paso 2: Colocar la unidad interior
1. Consulte los siguientes diagramas para ubicar los cuatro orificios para los
tornillos de posicionamiento
del techo. Asegúrese de marcar los lugares donde
realizará los orificios de los ganchos del techo.
Dimensiones de salida de aire
Dimensiones de retorno de aire
Abertura de ventilación descendente y gancho montado
Filtro de aire
Caja de control eléctrico
(unidad: mm/pulg.)
MODELO
(fg/h)
Dimensiones generales
A B C
4500 210/8.3 674/26.5880/34.6
6000-9000 249/9.8 774/30.51100/43.3
7500-9000 249/9.8 774/30.51360/53.5
9000-15000
300/11.8 874/34.41200/47.2
Abertura salida de aire
D E F
136/5.4 706/27.8600/23.6
175/6.9 926/36.5700/27.6
175/6.9 1186/46.7700/27.6
227/8.9 1044/41.1800/31.5
Abertura retorno de aire
190/7.5
228/8.9
228/8.9
280/11
Tamaño de lengüeta
I
920/36.2782/30.8
1140/44.91001/39.4
1400/55.11261/49.6
1240/48.81101/43.3
J
G
H
508/20
598/23.5
598/23.5
697/27.4
Filtro de aire
2250/4500
200/7.9 506/19.9700/27.6 152/6 537/21.1450/17.7 186/7.3 741/29.2599/23.6
360/14.2
19
V.2

Table of Contents

Related product manuals