EasyManua.ls Logo

Juniper ACX5448-D - ACX5400 Grounding Cable and Lug Specifications

Juniper ACX5448-D
206 pages
Print Icon
To Next Page IconTo Next Page
To Next Page IconTo Next Page
To Previous Page IconTo Previous Page
To Previous Page IconTo Previous Page
Loading...
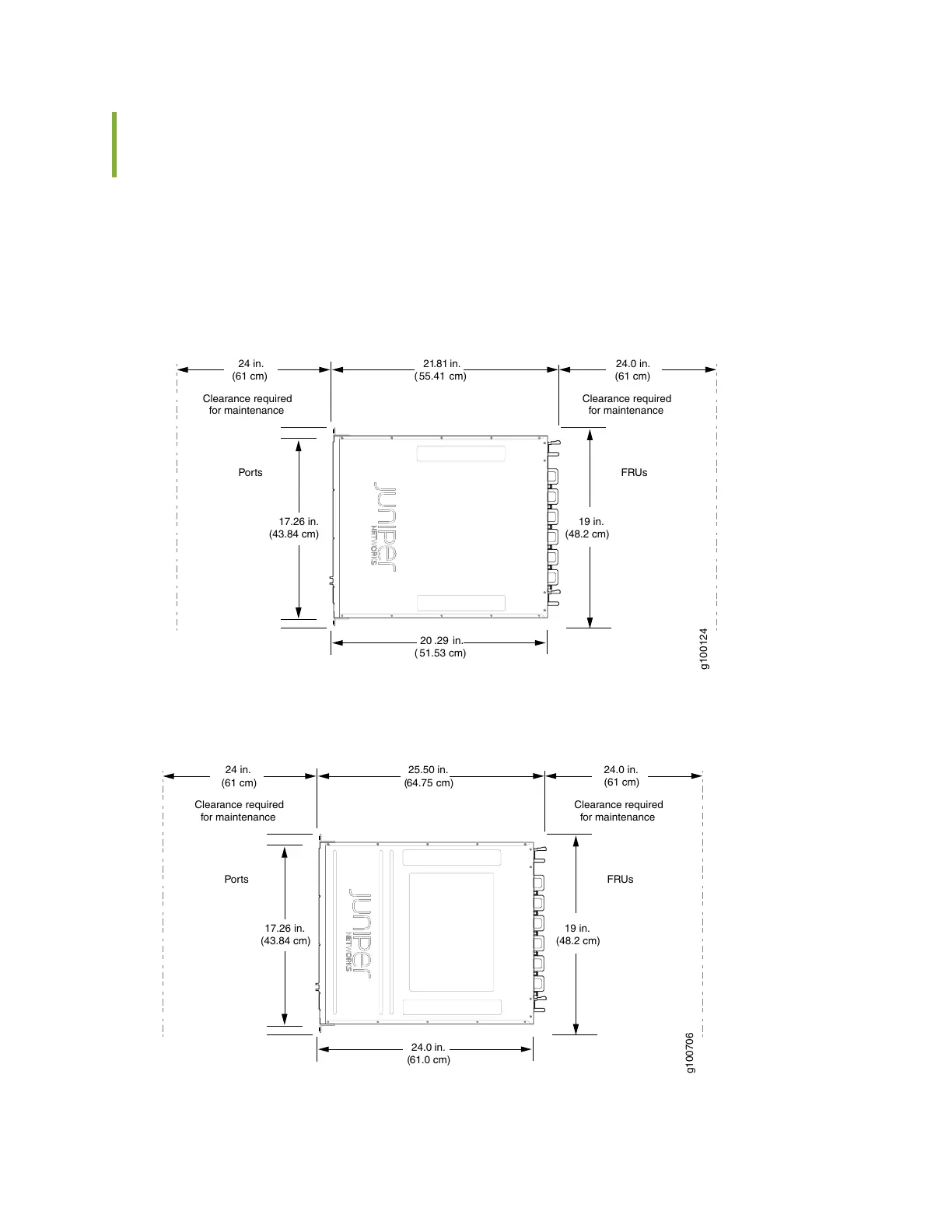
Clearance Requirements for Airflow and Hardware Maintenance for
ACX5400 Routers
When planning the site for installing an ACX5400 router, you must allow sufficient clearance around the
installed chassis (see Figure 40 on page 70 and Figure 41 on page 70).
Figure 40: Clearance Requirements for Airflow and Hardware Maintenance for ACX5448 and ACX5448-D
Routers
g100124
21.81 in.
( 55.41 cm)
19 in.
(48.2 cm)
17.26 in.
(43.84 cm)
Ports FRUs
24 in.
(61 cm)
Clearance required
for maintenance
24.0 in.
(61 cm)
Clearance required
for maintenance
20 .29 in.
( 51.53 cm)
Figure 41: Clearance Requirements for Airflow and Hardware Maintenance for ACX5448-M Routers
g100706
25.50 in.
(64.75 cm)
19 in.
(48.2 cm)
17.26 in.
(43.84 cm)
Ports FRUs
24 in.
(61 cm)
Clearance required
for maintenance
24.0 in.
(61 cm)
Clearance required
for maintenance
24.0 in.
(61.0 cm)
70

Table of Contents

Related product manuals