EasyManua.ls Logo

Kampmann Venkon EC - Accessories; Air-Side Steel Accessories

Kampmann Venkon EC
84 pages
Print Icon
To Next Page IconTo Next Page
To Next Page IconTo Next Page
To Previous Page IconTo Previous Page
To Previous Page IconTo Previous Page
Loading...
Venkon EC 115 V
26
26
Construction and Function
Air-side sheet steel accessories
4.4 Accessories
4.4.1 Air-side Steel Accessories
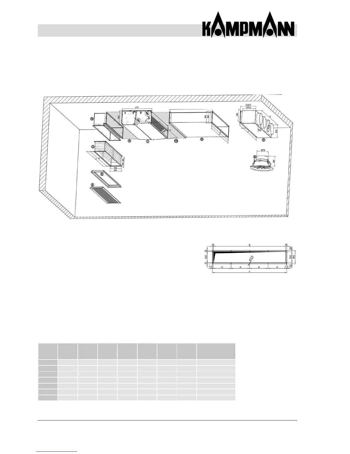
Overview of Parts:
1
Venkon fan coil recirculation air basic unit
2
Air duct, long, type 14835BB0B*01
3
Air duct angled section 90°, type 14835BB0B*03
4
Flexible connection, type 14835BB0B*04
5
Intermediate frame (within the air intake / outlet frame)
6
Air inlet and outlet grille, type 14837BB0B*02
7
Round pipe connection unit, type 14835BB0B*05
8
Ceiling swirl diffuser, type 14837BB0B001
9
Air intake box with primary air connector, type 14835BB0B*07, (position shown in grey)
bl
Air outlet box with primary air connector, type 14835BB0B*08, (position shown in grey)
Mod a b c d e f g
Number of adaptors
Round pipe
connection unit
1 620 530 560 272,5 0 590 553 2
2 770 680 710 347,5 0 740 703 3
3 920 830 860 422,5 0 890 853 3
4 1070 980 1010 497,5 0 1040 1003 4
5 1220 1130 1160 572,5 0 1190 1153 4
6 1370 1280 1310 647,5 0 1340 1303 4
7 1770 1680 1710 427,5 420 1740 1703 5
Fig. 14: Sheet steel accessories
(For example: Recirculation air ceiling unit
L = 1000 (non-standard length on request)

Table of Contents

Related product manuals