EasyManua.ls Logo

Kampmann Venkon EC - Page 40

Kampmann Venkon EC
84 pages
Print Icon
To Next Page IconTo Next Page
To Next Page IconTo Next Page
To Previous Page IconTo Previous Page
To Previous Page IconTo Previous Page
Loading...
Venkon EC 115 V
40
40
Installation and Connection
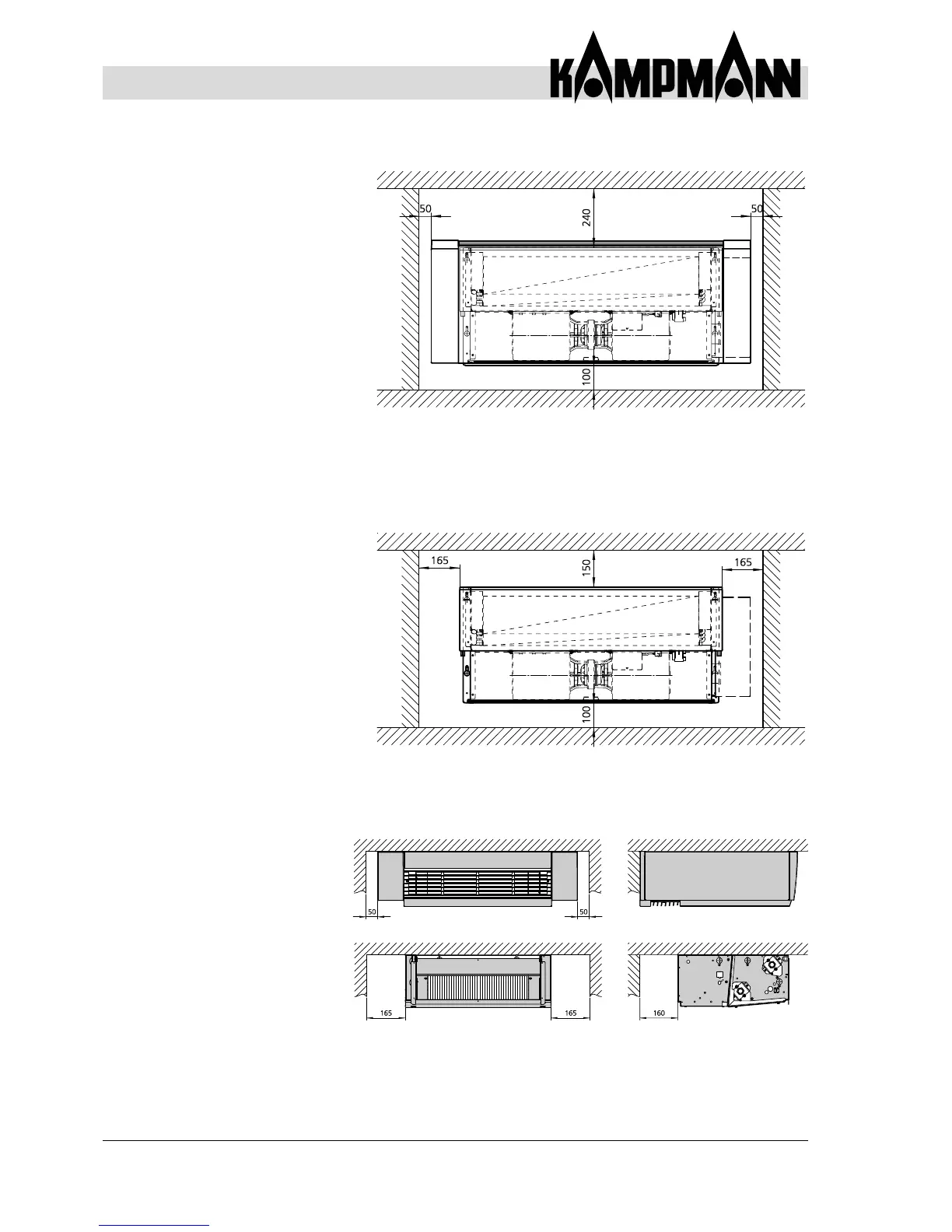
Minimum clearances
Fig. 16: Minimum clearances
Thegureshowsawall-mountedunitwithcasingindicated.
The same minimum clearances also apply to under-ceiling and
free-standing units.
Thegureshowsawall-mountedunitwithcontrolbox
indicated. The same minimum clearances also apply to
under-ceiling basic units.
Thegureshowsaunder-ceilingunitwithcasing(topview)
and without casing (lower view) indicated.

Table of Contents

Related product manuals