EasyManua.ls Logo

Kollmorgen S7240

Default Icon
166 pages
To Next Page IconTo Next Page
To Next Page IconTo Next Page
To Previous Page IconTo Previous Page
To Previous Page IconTo Previous Page
Loading...
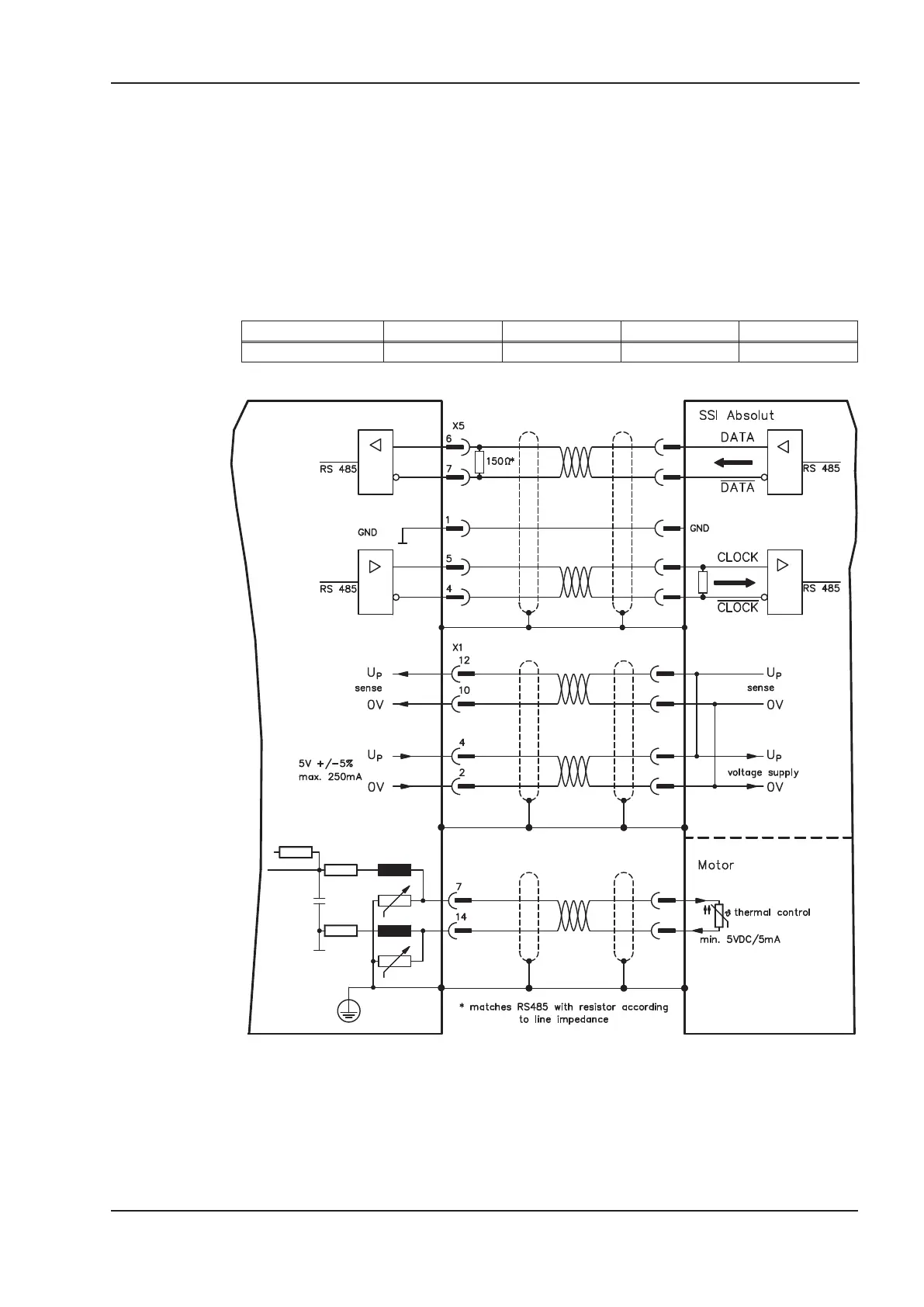
9.2.3.1.3 SSI Encoder (X5, X1)
Wiring of a synchronous serial absolute-encoder as a feedback system (primary or
secondary, ð p.76). The signal sequence can be read in Gray code or in Binary (stan
-
dard) code.
The power supply for the encoder and thermal control in the motor is connected to X1
and evaluated there.
If cable lengths of more than 50m are planned, please consult our customer service.
Frequency limit: 1.5 MHz
Type FBTYPE EXTPOS GEARMODE ENCMODE
SSI 9 5 5 0
Switch on supply voltage for the encoder at X1: set ENCVON to 1
S701x2-S724x2 Instructions Manual 145
Kollmorgen 07/2014 Expansions
S700

Table of Contents

Related product manuals