EasyManua.ls Logo

MD Helicopters 369D - Page 392

MD Helicopters 369D
722 pages
Print Icon
To Next Page IconTo Next Page
To Next Page IconTo Next Page
To Previous Page IconTo Previous Page
To Previous Page IconTo Previous Page
Loading...
CSP-HMI-3 MD Helicopters, Inc.
MAINTENANCE MANUAL
[ Main Menu ]
[ HMI3 Book TOC ]
[ Chapter 96 TOC ]
Page 246
Revision 9
96-02-00
The information disclosed herein is proprietary to MD Helicopters, Inc.
Neither this document nor any part hereof may be reproduced or transferred to
other documents or used or disclosed to others for manufacturing or any other
purpose except as specifically authorized in writing by MD Helicopters, Inc.
Copyright © 19992016 by MD Helicopters, Inc.
J510P
EFFECTIVITY: 500N S/N 045 AND SUBS
L1167C22
+28VDC
TB500-1
AB
C
TB500-2
GND
L5001C22
DS400
TAIL LT.
W
G
12
12
DS250
POS. LT.
DS401
TAIL LT.
W
R
12
12
DS251
POS. LT.
BLUE BLUE
RED
BLACK
RIGHT
HAND
SIDE
LEFT
HAND
SIDE
BLUE BLUE
RED BLACK
D
E
AB
C
D
E
L1101C22
SP63
SP64
SP65
SP213
WHT
LOWER
TAIL
STROBE
DS202
SHIELD BRAID
A B
SP60
A B
SP61
A B
SP62
A B
SP212
WHT
BLU
ORN
WHT
BLK
RED
SHIELD BRAID
UPPER
TAIL
STROBE
DS201
J208P
L1104B22
L1101B22
L1167B22
L5001B22
(E18-Z) L5001A22N
(TB200-8B) L1167A22
P558
1
2
3
ANODE
TRIGGER
GND
ORN
L1104A22
1
2
3
1
2
3
L1101A22
L1083A22
STROBE PWR
SUPPLY
P556
P557
L1003B22
E1127B22
BLK (E8)
WHT
P1201J
FL10
LINE
LOAD
A B
SP65
A B
SP64
A B
SP63
A B
SP211
RED
LOWER
STROBE
LIGHT
DS200
FOR WHELEN LIGHT ONLY
E44
A B
SP502
TO FAN XMSN
CHIP DET.
369D24254
G96-0027-3
A B
A B
A B
A B
1
2
3
4
WHT
BLU
ORN
WHT
BLU
ORN
WHT
BLU
WHT
BLU
ORN
BLK
RED
WHT
BLU
ORN
WHT
BLK
ORN
D
E
F
C
A
B
G
ORN
WHT
BLU
WHT
BLK
H
J
K
D
E
F
C
A
B
G
WHT
BLU
ORN
WHT
BLU
ORN
WHT
BLU
ORN
WHT
BLU
ORN
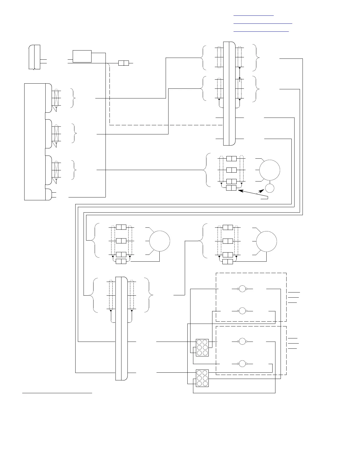
Figure 207. Fuselage Wiring Diagram (500N Unique) (Sheet 3 of 3)

Table of Contents

Other manuals for MD Helicopters 369D

Related product manuals