EasyManua.ls Logo

MD Helicopters 369D - Page 397

MD Helicopters 369D
722 pages
Print Icon
To Next Page IconTo Next Page
To Next Page IconTo Next Page
To Previous Page IconTo Previous Page
To Previous Page IconTo Previous Page
Loading...
CSP-HMI-3MD Helicopters, Inc.
MAINTENANCE MANUAL
[ Main Menu ]
[ HMI3 Book TOC ]
[ Chapter 96 TOC ]
96-02-00
Page 251
Revision 9
The information disclosed herein is proprietary to MD Helicopters, Inc.
Neither this document nor any part hereof may be reproduced or transferred to
other documents or used or disclosed to others for manufacturing or any other
purpose except as specifically authorized in writing by MD Helicopters, Inc.
Copyright © 19992016 by MD Helicopters, Inc.
SP27
E1153A22
E1152A22
+
+
S201
S200
XMSN CHIP
DET. AFT
XMSN CHIP
DET. FWD
(J1201-13) E1151B22
P206
A
B
SCAV-AIR
SOLENOID
CR201
(J1201-10) P1008B22
D
J208P
(W228)
L1101B22
(P556-2) WHT
L1167B22
E1127C22
J209P
WHT
(W201)
L1167C22
E1127D22
(W229)
L1101C22
A B
A B
A B
A B
SP60
SP61
SP62
SP212
WHT
WHT
STROBE
LIGHT
UPPER
DS201
GND
SCREW
FOR WHELEN LIGHT ONLY
A B
SP402C
DS400
1
2
L1168A22NL1167D22
TAIL LT.
TAIL ROTOR
GEARBOX
CHIP DET.
E1127D22
S400
(J1201-5) E1128B22
A B
SP208
E1128C22 +
RT301
ENG. OIL
TEMP. SNDR
(J1201-6) D1131B22
A B
SP118
D1131C22
D1132A22
+
-
A B
SP119
S202
ROTOR OIL
TEMP. SW.
E18
M1264A22N
A
B
(TB200-9Z) J1001G22
(J1201-7) E1081B22
1
2
3
ROTOR OIL
PRESS. SW.
S203
(TB200-8M) E1136A22
(J1201-8) E1134A22
P202
G200
ROTOR
TACH GEN
AIR FILTER
BYPASS SW.
S2001
1
2
A B
SP207
A B
SP206
(J1201-11) P1154B22
HR3
AFT LIGHTER
1
2
P1156C16
A B
SP20
P1157A16
DS105
WARN HORN
+
-
W1253B22
W1096B22
B A
SP82
B A
SP81
(TB200-9J) W1253A22
(TB200-9F) W1096A22
B A
SP21
E15
P1157B16N
J605
A
B
C
M1015C16
(E35-B) M1020A16N
(E36-D) M1021A16N
CARGO
HOOK
RCPTL
A1 A2
X1
X2
CR203
K201
HOOK RELAY
(TB200-4R) M1105A22
(TB200-4Y) M1107A22
(E37-B) M1179A22N
A
P1202J
M1015B16
A1
A2
X1
X2
CR32
K101
LANDING
LIGHT RELAY
(TB200-6Y) L1014A22
L1012C16
22AWG JMPR
LANDING LIGHT
DS100
12
(E36) L1013A16N
369D24254
G96-0028-5
A B
E
F
C
A
B
(P556-3) BLU
(P556-1) ORN
(TB200-B) L1167A22
(J1201-4) E1127B22
BLU
ORN
WHT
BLU
ORN
D
E
F
C
A
B
WHT
BLU
ORN
BLU
ORN
BLK
RED
L1147A22N (DS205-2)
D1133A22N
E1082A22N
L5001A22N (J208-G) (500N ONLY)
P1150A22N
P1154C22N
(DS202-2) L1149A22N
B
C
D
E
L
M
F
G
H
J
N
K
P1067A16 (CB301-1)
P1068B16 (P1203-J)
L1012B16
P1156B16
E1141A16 ALUMEL GRN (TC300)
E1141A16 CHROMEL WHT (TC300)
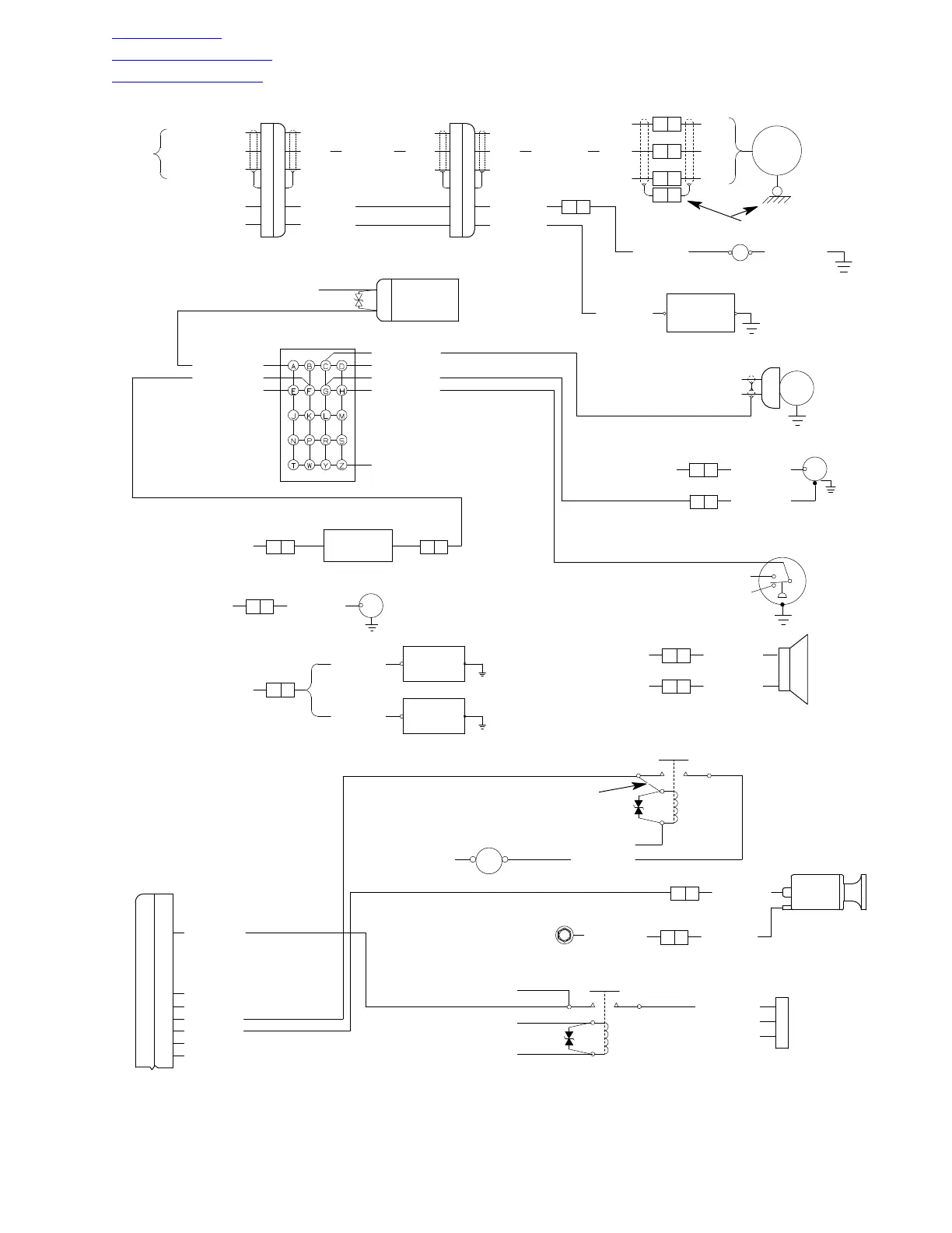
Figure 208. Fuselage Wiring Diagram (369E; 509 & Subs, 369FF; 096 & Subs
500N; 045 & Subs) (Sheet 5 of 9)

Table of Contents

Other manuals for MD Helicopters 369D

Related product manuals