EasyManua.ls Logo

MD Helicopters 369D - Page 403

MD Helicopters 369D
722 pages
Print Icon
To Next Page IconTo Next Page
To Next Page IconTo Next Page
To Previous Page IconTo Previous Page
To Previous Page IconTo Previous Page
Loading...
CSP-HMI-3MD Helicopters, Inc.
MAINTENANCE MANUAL
[ Main Menu ]
[ HMI3 Book TOC ]
[ Chapter 96 TOC ]
96-02-00
Page 257
Revision 14
The information disclosed herein is proprietary to MD Helicopters, Inc.
Neither this document nor any part hereof may be reproduced or transferred to
other documents or used or disclosed to others for manufacturing or any other
purpose except as specifically authorized in writing by MD Helicopters, Inc.
Copyright © 19992016 by MD Helicopters, Inc.
G96-0029-2C
2
2
2
2
2
2
1
21
2
1
1
2
5A
5A
1A
3A
3A
5A
5A
3A
CB115 (ANTI-COLL LTS)
1
1
1
1
1
CB120 (PITOT HEAT)
CB118 (START PUMP)
CB150 (SCAV AIR)
CB119 (POS LTS)
CB143 (ANTI-ICE)
CB117 (UTIL PWR)
CB144 (COMP BLEED)
CB122 (N2 OVSPD)
L1003A22 (P1201-3)
5A
P20002A12
20 AWG
JMPR
(BUS-3) P2003A10
1
2
3
45
6
7
R110 (PNL LT DIM POT)
L1040J22 (P12-J)
S11 (AUTO-REIGN TEST)
1
2
3
W1307A22 (TB503-10J)
J1075D22N (E31-D)
S2 (MSTR SELECT SW)
P1035B22 (P1201-36)
BATT
OFF
EXT
1
C
3
S4 (GEN)
1
2
3
4
5
6
P1067D16
W1306B22 (TB503-10P)
W1306A22N (E31-C)
HR1 (FWD LIGHTER)
DS7
+
-
P1060A20 (TB503-6E)
P1060B22N (E31-T)
START PUMP ON LT
E1181A22 (P12-L)
E1181B22N (E31-F)
SWITCH/BREAKER PANEL
BLK
L1236C22N (E33-W)
L1136B22 (TB503-8Y)
RED
S3 (KEY SWITCH)
1
2
K1006A22
K1006B22 (P1201-16)
1
2
3A
3A
3A
3A
1
2
12
12
1
2
1
2
3A
3A
12
1
2
1
2
12
1
2
1
2
12
1
2
1
2
12
1
2
1
2
CB110 (LANDING LT)
CB105 (GYROS)
CB112 (GEN)
CB104 (PNL LTS)
CB103 (N2 GOV)
CB101 (INST)
CB102 (TRIM ACT)
CB106 (ENG OUT)
CB208 (START)
CB209 (AUDIO)
CB206 (COMM 2)
CB204 (NAV 2)
CB202 (XPONDER)
CB121 (FLOATS)
CB207 (COMM 1)
CB205 (NAV 1)
CB203 (ADF)
CB603 (HOOK)
15A
10A
5A
5A
2A
1A
2A
5A
5A
1A
2A
15A
CIRCUIT BREAKER PANEL
P2001A12
(BUS-1) P2005A10
(BUS-2) P2004A10
P2000A12
F1179A22 (TB503-10E)
BLK
L1234D22N (E33-T)
L1134C22 (TB503-8W)
RED
EDGE
LIGHT
PNL
EDGE
LIGHT
PNL
J1202P
C
F
G
H
J
N
K
HOOK
GEN
LANDING LT
AFT CIG LTR
TOT
M1012A16
P1255A16 (TB503-6B)
Q1169A22 (TB503-2P)
P1008A22 (P1201-10)
L1016A22 (P1201-22)
H1163AA22 (P1201-55)
M1177A22 (P1201-28)
P1155A16 (TB503-6A)
H1164AA22 (P1201-56)
P538A22 (TB503-7E)
W1040L22 (TB503-1W)
L1040K22 (P12-X)
L506A22N (E31-M)
P1031A22N (E31-A)
P1030C22 (P1201-37)
P1067C16
P1068A16
L1012B16
P1158A16 (TB503-8C)
ALUMEL (TB9-2)
CHROMEL (TB9-1)
L1039A22 (TB503-1B)
K1004A22 (P1201-14)
E1002A22 (TB503-1A)
C1009A22 (P1201-15)
J1071A22 (TB503-5A)
ICS001A22 (TB502-1M)
R1242A22 (TB502-1T)
R1244A22 (TB502-1J)
R1238A22 (TB502-1A)
W1007AA22 (TB503-9T)
R1241A22 (TB502-1Z)
R1243A22 (TB502-1N)
R1245A22 (TB502-1E)
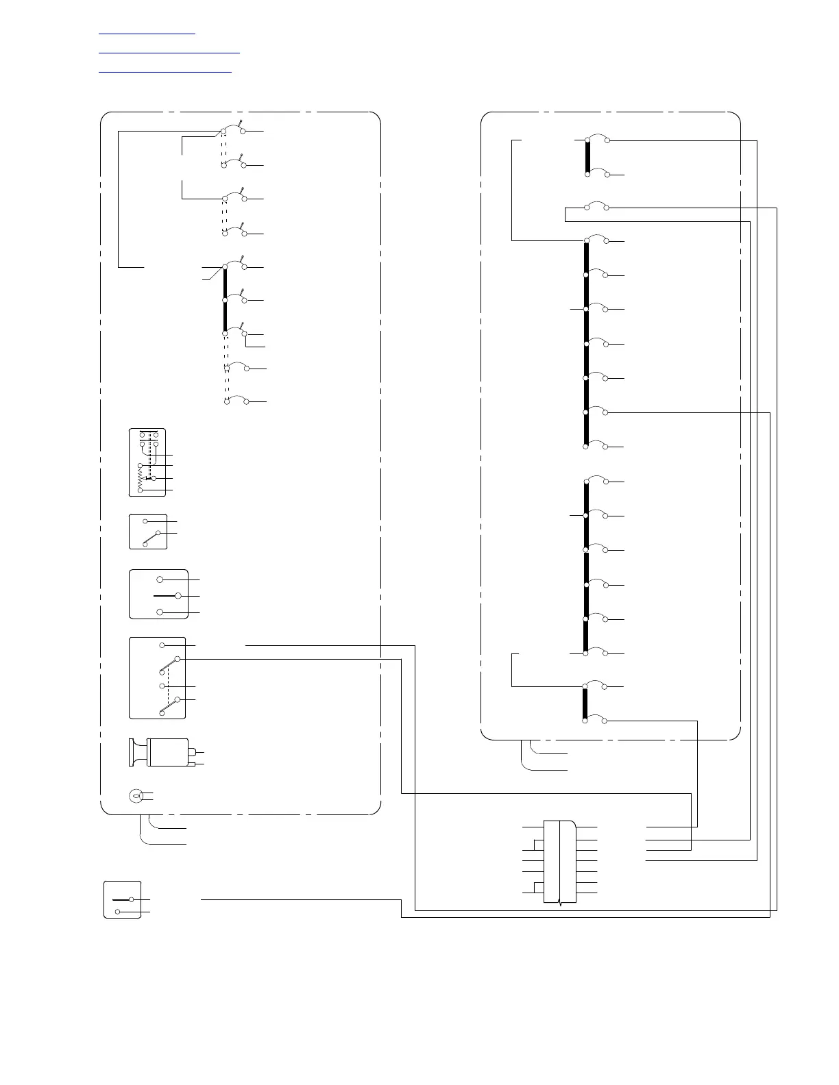
Figure 209. Console Wiring Diagram (369E; 509 & Subs, 369FF; 096 & Subs,
500N; 045 & Subs) (Sheet 2 of 7)

Table of Contents

Other manuals for MD Helicopters 369D

Related product manuals