EasyManua.ls Logo

MD Helicopters 369D - Page 696

MD Helicopters 369D
722 pages
Print Icon
To Next Page IconTo Next Page
To Next Page IconTo Next Page
To Previous Page IconTo Previous Page
To Previous Page IconTo Previous Page
Loading...
CSP-HMI-3 MD Helicopters, Inc.
MAINTENANCE MANUAL
[ Main Menu ]
[ HMI3 Book TOC ]
[ Chapter 97 TOC ]
Page 116
Revision 12
97-06-00
The information disclosed herein is proprietary to MD Helicopters, Inc.
Neither this document nor any part hereof may be reproduced or transferred to
other documents or used or disclosed to others for manufacturing or any other
purpose except as specifically authorized in writing by MD Helicopters, Inc.
Copyright © 19992016 by MD Helicopters, Inc.
G97-0607-1
DD
TB502-3S
TB502-5C
TB502-3H
TB502-6S
TB502-4L
TB502-5L
TB502-5R
TB502-5G
TB502-5F
TB502-1L TO CBS
TB502-4C
TB502-6P
TB502-4G
COMM XMIT KEY
COMM 1 AUD
XMIT MIC AUD
PHONE HI
PHONE LO
NAU AUDIO
ADF AUDIO
COMM 2 AUDIO
AUX AUDIO
+28 VDC
DC GROUND
AUDIO COMMON
P509
K
D
U
U
M
N
L
P
A
B
T
P/J10
CN511822
CN5514822
CN522A22
CN556A22
CN56A22
CN533A22
CN534A22
CN516822
P536620
CN59820N
CN513822
RV514822
RV514F22
CN512822
C/P ICS KEY
PILOT ICS KEY
C/P XMIT KEY
PILOT XMIT KEY
C/F ICS KEY
R/R ICS KEY
L/R ICS KEY
PILOT MIC HI
C/P MIC HI
Z
Y
X
W
AA
CC
BB
C
E
C/F MIC HI
L/R MIC HI
R/R MIC HI
F
H
J
CN521A22
CN520A22
CN519A22
CN523A22
CN525A22
CN531A22
CN529A22
CN524A22
CN532A22
CN530A22
CN515B22
CN555A22
A
B
C
D
E
F
G
H
J
K
L
M
N
P
R
CN521AA22
RV514FF22
CN520AA22
CN519AA22
CN523AA22
RV514BB22
CN531AA22
CN525AA22
CN524AA22
CN532AA22
CN530AA22
CN515BB22
CN555AA22
TB5-1A
TB5-1C
TB5-2B
TB5-2C
TB5-4B
TB7-3F
TB7-8C
TB7-8F
TB7-9C
TB7-10B
TB7-10D
TB7-10F
TB7-11B
TB7-11D
CN525AA22
ENGINE OUT
AUDIO D 1
AUDIO D 3
C
M
ES33A22
RUS14A22
TB502-6F
TB502-6J
TB502-6N
TB502-6K
TB502-4M
TB502-3A
TB502-3R
TB502-3Z
TB502-3M
TB502-3D
TB502-3G
RV543A22
RV545A22
RV544A22
RV542A22
RV541A22
RV540A22
COMM1/COMM2
TB105 (REF)
CR10
R30
2
1
3
RV514522
RV514022
RV514T22
A
B
C
D
J10-A CN521AA22
RV514FF22
J10-B
TB5-1
RV508D22
RV508C22
RV501A22
AUDIO COMMON
COPILOT ICS KEY
PILOT ICS KEY
TB5-2
RV510C22
J109-W
TB7-7C
TB7-1F
COPILOT XMIT KEY
TB5-3
J130-W
A
B
C
D
TB7-7D
J10-D
J10-C
RV501D22
CN520AA22
CN519AA22
RV516C22
J109-P
J10-E
CN523AA22
TB5-4
A
B
C
D
A
B
C
D
PILOT XMIT KEY
RV505B22
A22DMM2-1 MODULE
J130-P
J10-K
J10-L
J10-M
J10-N
J10-P
J10-J
J10-H
J10-G
TB5-2A
TB5-1B
J10-F
TB5-1D
1
2
3
4
5
6
7
8
9
10
11
12
13
14
15
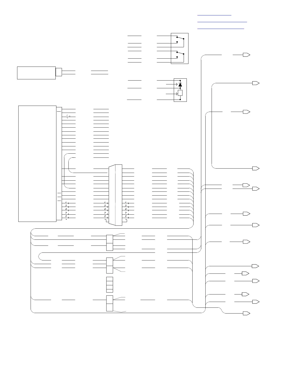
Figure 104. Wiring Diagram Integrated Interphone Communication System (Generic Vendor
Installation) (Sheet 1 of 2)

Table of Contents

Other manuals for MD Helicopters 369D

Related product manuals