EasyManua.ls Logo

Micros Systems Workstation 5 - Touchscreen Interface

Micros Systems Workstation 5
156 pages
Print Icon
To Next Page IconTo Next Page
To Next Page IconTo Next Page
To Previous Page IconTo Previous Page
To Previous Page IconTo Previous Page
Loading...
Workstation 5 Field Service Guide 2-19
Workstation 5 System Board Technical Descriptions
Touchscreen Interface
Touchscreen Interface
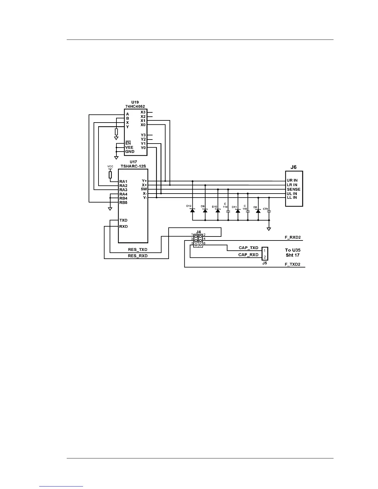
Figure 2-8 shows a block diagram of the system board resistive touchscreen
interface.
Figure 2-8: WS5 5-Wire Resistive Touchscreen Interface
U17, the Hampshire TSHARC-12S resistive touchscreen controller is a single
chip design, incorporating a microprocessor, A/D converter, UART, and
firmware. It supports only 5-wire resistive touchscreen and serial interface to
the host system.
The serial Receive/Transmit signals from U17 are routed to jumper block J4.
When a resistive touchscreen is installed, J4 is configured to route RES_TXD
to F_TXD2 and RES_RXD to F_RXD2 which are fed to UART2 in U35 Super
IO #2.
When the optional Capacitive Touchscreen Interface Board is installed, the
jumpers are configured to route CAP_TXD and CAP_RXD to U35 instead of
the resistive touchscreen controller.

Table of Contents