EasyManua.ls Logo

Miller syncrowave 300 - Section 10 - Electrical Diagrams

Miller syncrowave 300
52 pages
Print Icon
To Next Page IconTo Next Page
To Next Page IconTo Next Page
To Previous Page IconTo Previous Page
To Previous Page IconTo Previous Page
Loading...
OM-284794 Page 40
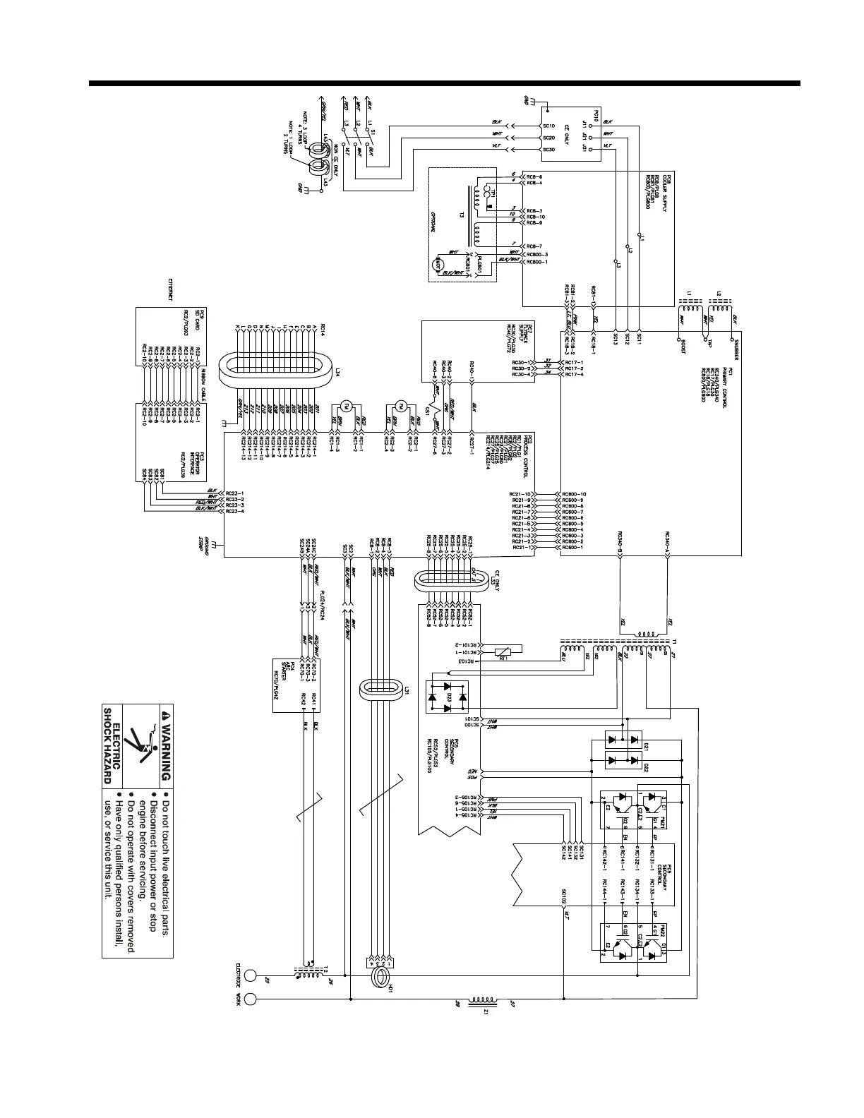
SECTION 10 ELECTRICAL DIAGRAMS
284622-C
Figure 10-1. Circuit Diagram

Table of Contents

Related product manuals