EasyManua.ls Logo

Omron MC4700 - Figure 14-2 Microsafe Flexible MCF4700 Dimensions

Omron MC4700
104 pages
Print Icon
To Next Page IconTo Next Page
To Next Page IconTo Next Page
To Previous Page IconTo Previous Page
To Previous Page IconTo Previous Page
Loading...
14
OMRON SCIENTIFIC TECHNOLOGIES INC.
Fremont CA USA
Tel: 1/888/510-4357 in USA and Canada
© OSTI 1209 PN99584-0050 Rev. E
Original Instructions
58
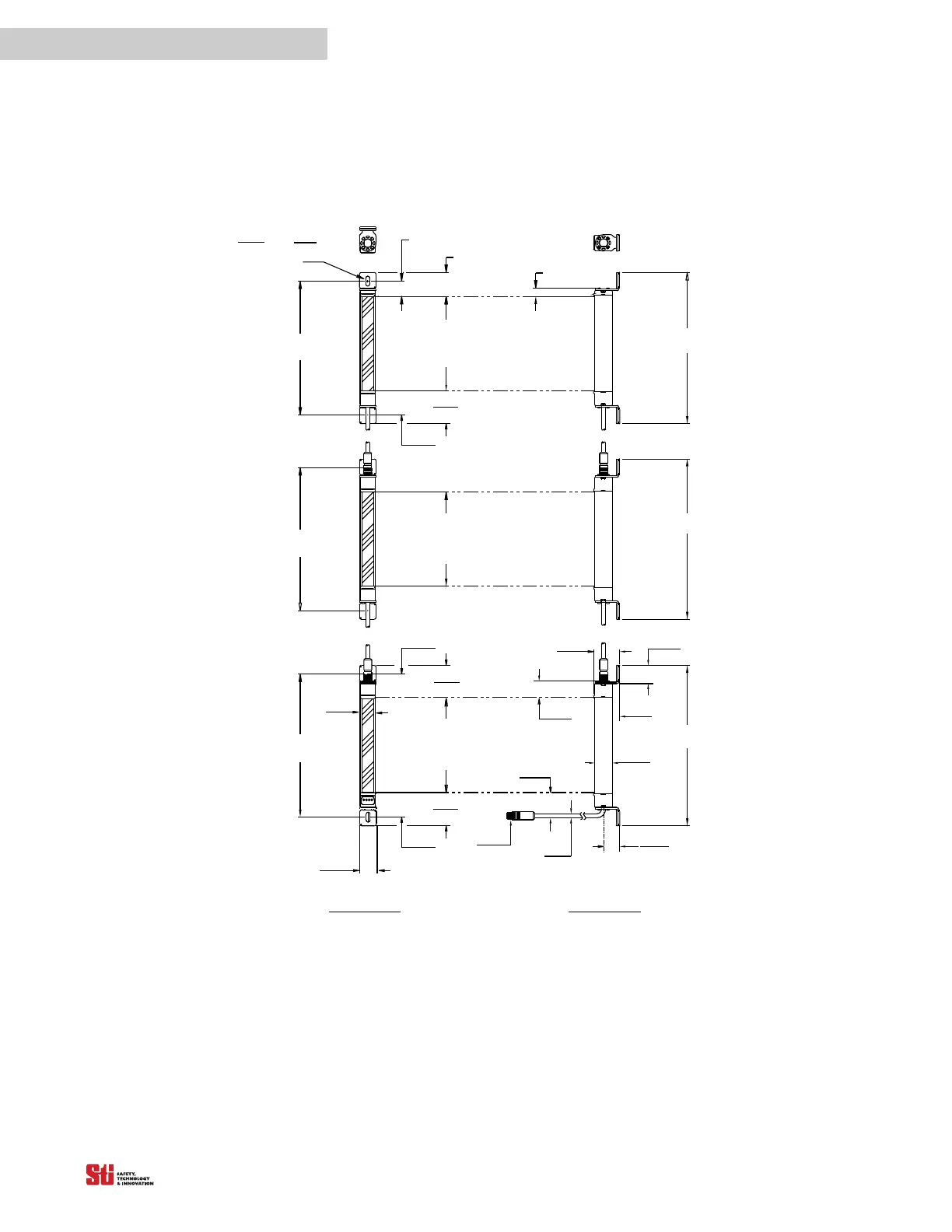
14.3 M ICROSAFE FLEXIBLE MCF4700 SERIES
MID
SEGMENT(S)
LAST
SEGMENT
"B"
"C"
"B"
"C"
40. 5 [1. 59]
14. 2 [0. 56]
SLOTS
0. 66
16. 7
LG
0. 27
6. 8
X
DIA
25. 9 [1. 02]
1. 63
41. 4
2. 20
56. 0
ZONE
DECTECTION
"A"
ZONE
DECTECTION
"A"
"C"
ZONE
DECTECTION
"A"
"B"
1. 63
41. 4
31. 0
1. 22
1. 74
44. 3
0. 48
12. 2
1. 19
2. 20
56. 0
29. 7
1. 17
L
C
1. 08
27. 3
L
C
SIDE VIEW
1. 68
42. 8
DIA.
2. 20
56. 0
O. D.
1. 63
.56
14. 2
7. 0
.28
30. 3
1. 02
26. 0
1. 10
28. 0
FRONT VIEW
SEGMENT
FIRST
41. 4
Figure 14-2 MicroSafe Flexible MCF4700 Dimensions

Table of Contents