EasyManua.ls Logo

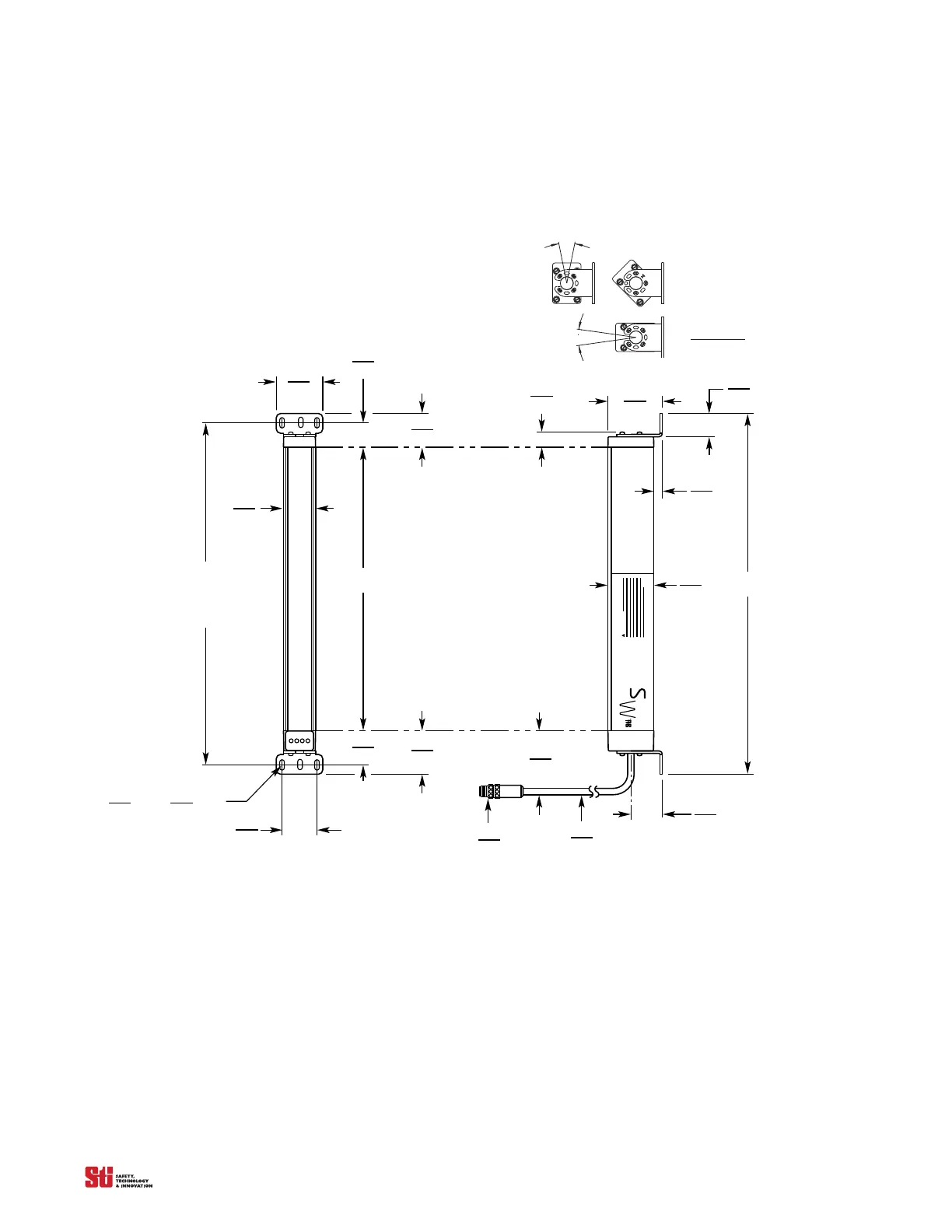
Omron MC4700 - Minisafe Flexible Msf4700 Series; Figure 14-7 Minisafe Flexible MSF4700 Dimensions

Omron MC4700
104 pages
Print Icon
To Next Page IconTo Next Page
To Next Page IconTo Next Page
To Previous Page IconTo Previous Page
To Previous Page IconTo Previous Page
Loading...
. . . . .
OMRON SCIENTIFIC TECHNOLOGIES INC.
Fremont CA USA
Tel: 1/888/510-4357 in USA and Canada
© OSTI 1209 PN99584-0050 Rev. E
Original Instructions
77
14.6 M INISAFE FLEXIBLE MSF4700 SERIES
WARNING
Series
icro
afe
4700
FRONT VIEW
DIALG X
SLOTS (6)
11. 4
0. 45
6. 75
0. 265
B
(MOUNTING
SLOT CENTER-
TO-CENTER)
(MTG)
C
A (DETECTION ZONE)
C
L
C
L
MIN.
SIDE VIEW
O. D.
DIA.
38. 1
1. 50
37. 8
1. 49
48. 0
1. 89
69. 9
2. 75
7
0. 28
34. 3
1. 35
9. 3
0. 37
50
1. 97
25. 4
1. 00
16. 6
0. 66
59. 1
2. 33
37. 4
1. 47
26. 7
1. 05
52. 8
2. 08
35
1. 38
14. 2
0. 58
16
16
TOP VIEW
ROTATION
MTG
BRKT
Figure 14-7 MiniSafe Flexible MSF4700 Dimensions

Table of Contents