EasyManua.ls Logo

Oriental motor BLE2D60-A - Page 84

Oriental motor BLE2D60-A
86 pages
Print Icon
To Next Page IconTo Next Page
To Next Page IconTo Next Page
To Previous Page IconTo Previous Page
To Previous Page IconTo Previous Page
Loading...
Appendix
84
HelpHow to usePreparation Safety precautions
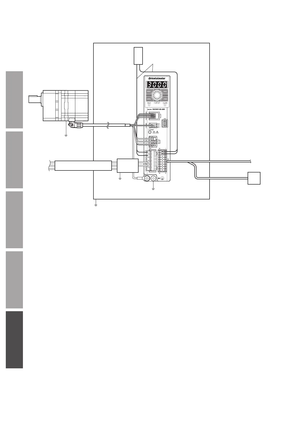
Example of installation and wiring
Connection cable
AC power supply
L
N
PE
Power supply cable
[2 m (6.6 ft.)]
External
potentiometer
Ground plate (aluminum plate)
I/O signals cable
[2 m (6.6 ft.)]
External potentiometer
cable [2 m (6.6 ft.)]
Grounding
Grounding
Regeneration unit lead wire

[0.3 m (0.98 ft.)]
Regeneration unit
RGB100
Mains
lter
Grounding
Grounding
*1
The connection cables for up to 20.5 m (67.2 ft.) have been evaluated.
*2
Non-shielded cable
Precautions about static electricity
Static electricity may cause damage to the driver.
Be sure to ground the product in order to prevent electric shock or product damage by static electricity.
Except when operating the operation panel on the driver, do not approach or touch the driver while the power is on.

Table of Contents

Related product manuals