EasyManua.ls Logo

Peri CB 240 - Handrails and Guardrails

Peri CB 240
102 pages
Print Icon
To Next Page IconTo Next Page
To Next Page IconTo Next Page
To Previous Page IconTo Previous Page
To Previous Page IconTo Previous Page
Loading...
61
CB 240 Climbing Formwork
Instructions for Assembly and Use – Standard Configuration
C1 Planning and Work Preparation
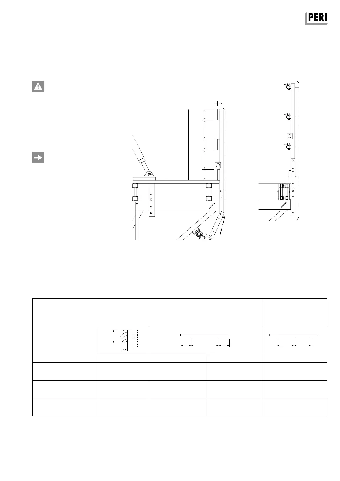
Handrails and Guardrails
Rear and side protection in accordance
with respective national regulations!
On all platform levels, edges are to be
protected with guardrails. In order to
maintain permissible spans and cantile-
vers, additional guardrail posts can also
be mounted, see Table 6.
Working areas positioned at great heights
are to be secured through the use of
safety nets or by closed side protection
in order to prevent objects from falling
to the ground.
(Fig. C1.04a + C1.04b)
Table 6
Permissible spans of guardrail boards
b
d
Fig. C1.04a Fig. C1.04b
b
1,0 m
47 cm
47 cm
15 cm
Minimum requirements: Soft Wood Strength Class C24 according to DIN 338
An enclosure with nets is permissible if the solidity is a max. 50%, and if the netting is previously removed for storms with
wind speeds over 125 km/h (q = 0.75 kN/m²). Otherwise a separate static analysis is required.
d/b [mm]
40/120
30/150
3.34
2.41
0.90
0.63
4.17
3.00
40/120
30/150
3.23
2.35
0.89
0.63
3.56
2.93
40/120
30/150
2.13
1.78
0.84
0.60
2.13
1.78
Case 1
2 guardrail posts + overhang
Case 2
3 or more guardrail posts
Dimensions of guard-
rail boards
Standard / transition area
Corner area
Building corner overhang
Wall area
perm. A
1
[m] perm. C [m] perm. A
2
[m]
d
d
C CA
1
A
2
A
2
AuV CB 240 EX.indb 61 29.06.16 09:46

Related product manuals