EasyManua.ls Logo

Peri CB 240 - Connecting TRIO Formwork

Peri CB 240
102 pages
Print Icon
To Next Page IconTo Next Page
To Next Page IconTo Next Page
To Previous Page IconTo Previous Page
To Previous Page IconTo Previous Page
Loading...
64
45 cm
30 cm
5 cm
40,5 cm
24 cm
50 cm
15 cm
5 cm
34,3 cm
24 cm
45 cm
30 cm
5 cm
48,6 cm
16 cm
45 cm
15 cm
5 cm
37,3 cm
16 cm
12,5 cm
6,3 cm
25 cm
6,3 cm
23,7 cm
6,3 cm
36,2 cm
6,3 cm
4
4.5
4.5
4
4.5
4
4.5
4
4.5 4.5
4
4
4.5
4.5
4
4
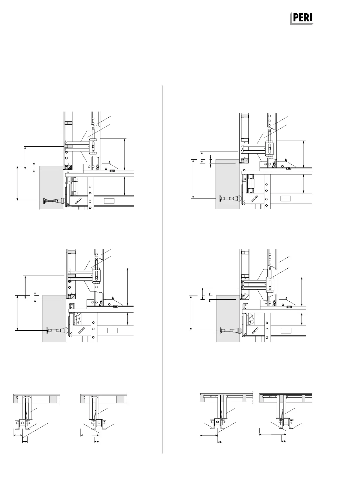
CB 240 Climbing Formwork
Instructions for Assembly and Use – Standard Configuration
C1 Planning and Work Preparation
Connecting TRIO formwork
Connection to Horizontal Struts
Height of girder: 24 cm
Element TR in a vertical position
Height of girder: 16 cm
Layout of C1.10.1 + C1.10.3
Connection to Vertical Struts
Height of girder: 24 cm
Element TR in a lateral position
Height of girder: 16 cm
Layout of C1.10.2 + C1.10.4
Fig. C1.10.1 Fig. C1.10.2
Fig. C1.10.3 Fig. C1.10.4
Fig. C1.11.1 Fig. C1.11.2
Centre line of bra-
cket
Centre line of bra-
cket
AuV CB 240 EX.indb 64 29.06.16 09:46

Related product manuals