EasyManua.ls Logo

Peri CB 240 - Corner Platforms

Peri CB 240
102 pages
Print Icon
To Next Page IconTo Next Page
To Next Page IconTo Next Page
To Previous Page IconTo Previous Page
To Previous Page IconTo Previous Page
Loading...
69
CB 240 Climbing Formwork
Instructions for Assembly and Use – Standard Configuration
C1 Planning and Work Preparation
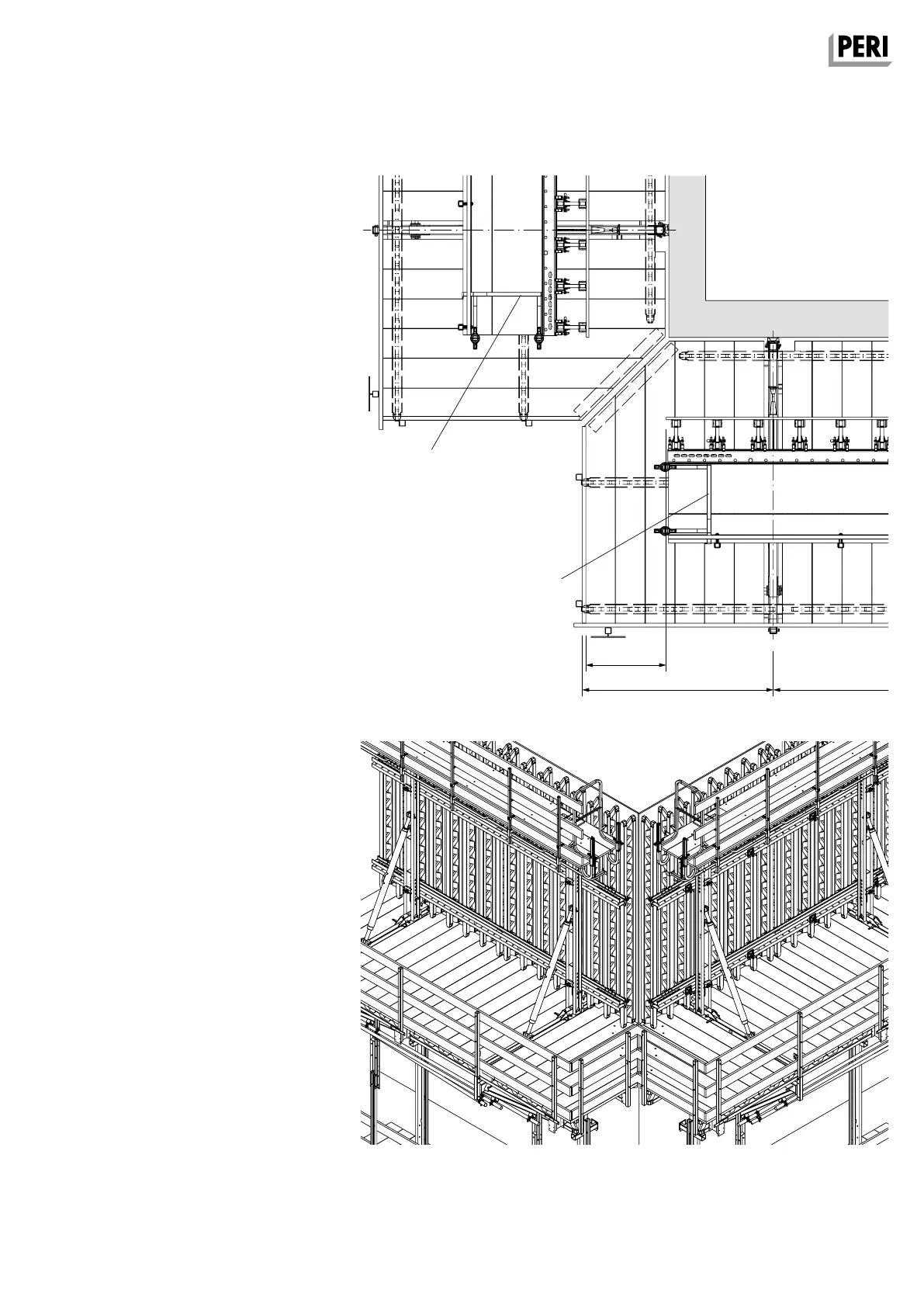
Corner Platforms
Corner platforms are to be erected in
such a way that free access is possible
around the corners of the building when
the formwork has either been moved
forward or retracted.
Measures
An additional cantilever on both outside
girders.
The planking is cantilevered inwards and
fixed along the 45° edge on the under-
side of a distribution plank.
Open edges at the platform ends are to
be secured with end guardrails.
The concreting and intermediate plat-
forms are to be secured accordingly.
e.g. with End Handrail Frame 55 (10.7).
(Fig. C1.19a + C1.19b)
In the verification process with the help
of the application diagrams, the girder
cantilever is to be taken into considera-
tion.
Cantilever
≥ 60
Bracket spacing
Fig. C1.19a
Fig. C1.19b
10.7
10.7
AuV CB 240 EX.indb 69 29.06.16 09:46

Related product manuals