EasyManua.ls Logo

Peri CB 240 - A1 Assembly of the CB 240 Platform; Required Resources

Peri CB 240
102 pages
Print Icon
To Next Page IconTo Next Page
To Next Page IconTo Next Page
To Previous Page IconTo Previous Page
To Previous Page IconTo Previous Page
Loading...
12
CB 240 Climbing Formwork
Instructions for Assembly and Use – Standard Configuration
A1 Assembly of the CB 240 Platform
0.3
Fig. A1.03
83 mm 80 mm
240
2,398 m120 mm
82 mm 82 mm
C
Fig. A1.02
Fig. A1.01
0.5
0.2
0.2
Required Resources
Equipment and Tools
Hammer, wire pins, plumb line, 4 screw
clamps with 300 mm clamping length,
circular saw, electric drill, HSS drill
Ø6mm, Ø 8 mm, min. L = 180 mm
072180 Ratchet Wrench 1/2”
102784 Socket SW 24 – 1/2”
029620 Socket SW 19 – 1/2”
072170 Socket SW 13 – 1/2”
072150 Power Wrench M14, ASB 636
072210 Power Screwdriver SCU 7 – 9
072220 Bit Holder
072230 Magnetic Holder
072140 Bit Points TX 30
031480 Socket Wrench SW 36
027212 Allen Key SW 14
031080 Drill Bit Ø 25 mm
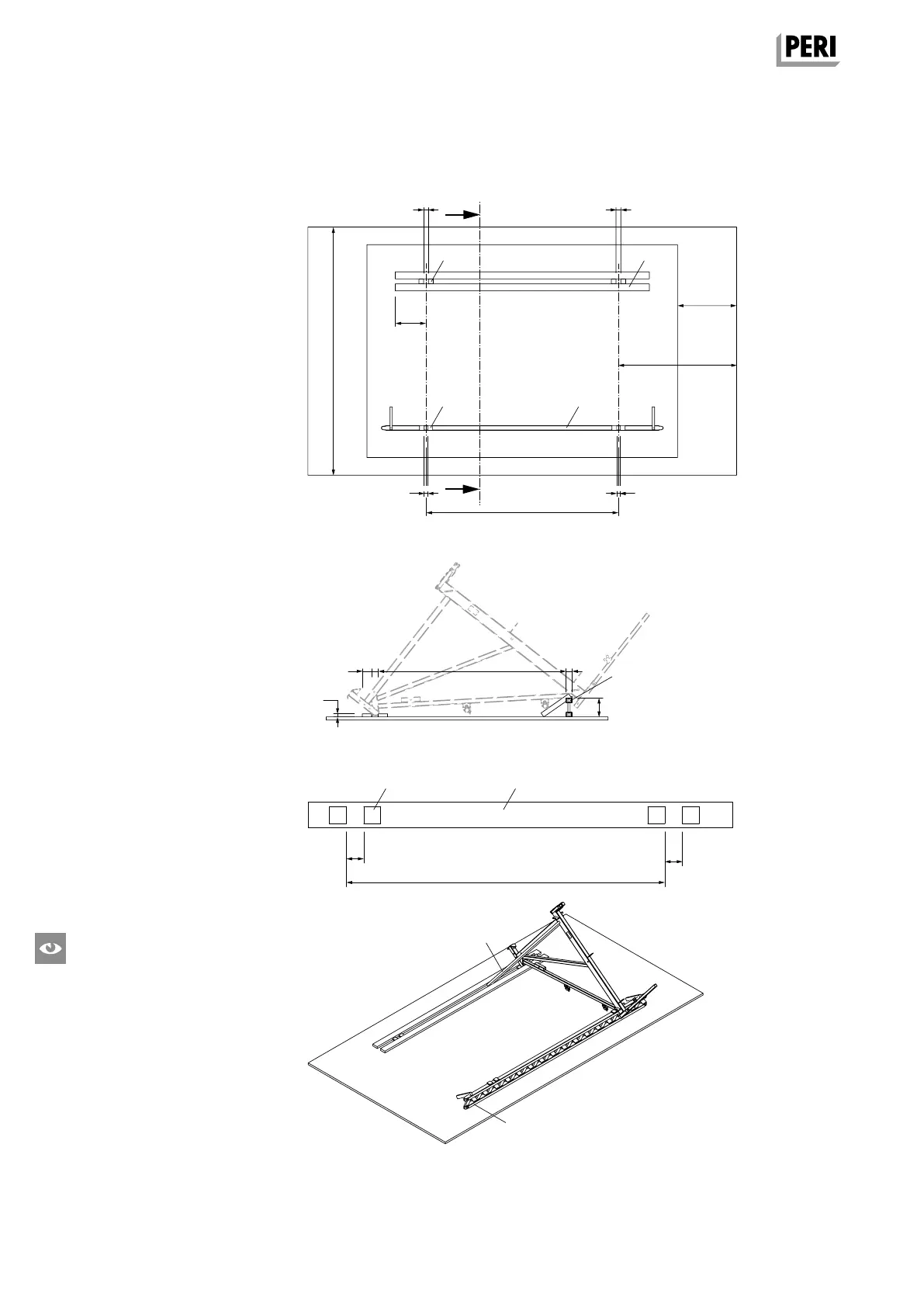
Assembly Surface
Width: approx. 3.50 m.
Length: maximum platform width + min.
2.0 m.
Attach stop bars and support.
(Fig.A1.01)
Aids
Locating Block (0.1) 12 plywood
blocks 21 x 80 x 80 mm.
Support (0.2) h = approx. 24 cm, e.g.
GT 24 L = max. bracket spacing + 1.0 m.
Stop Bars (0.3) 1 plank 40 x 120 mm
1plank 80 x 80 mm L = max. bracket
spacing + 1.0 m.
Gauge for bracket spacing (0.4) 1
plank 40 x 120 mm L = bracket spacing
+ max. 1.0 m Formlining blocks (4).
(Fig. A1.02)
Diagonal bracing for securing bracket
(0.5) 1 plank 40 x 120 mm, L = 2.0 m.
(Fig. A1.03)
Are the stop bars and support mounted
parallel to each other?
82 mm 82 mm
1,0 m
2,0 m
3,5 m
62 mm 62 mm
C
ca. 50 cm
2 stop bars
Support
Centre line of bra-
cket
Centre line of bra-
cket
Wall side
Section A-A
Guardrail side
A
A
Fig. A1.01a
0.2
0.1
0.1
0.1 0.4
AuV CB 240 EX.indb 12 29.06.16 09:44

Related product manuals