EasyManua.ls Logo

Philips 32PFL9432/98 - SSB: PNX85 xx: DEBUG B04 B; SSB: PNX85 xx: NVM; UART Switch B04 C

Philips 32PFL9432/98
215 pages
Print Icon
To Next Page IconTo Next Page
To Next Page IconTo Next Page
To Previous Page IconTo Previous Page
To Previous Page IconTo Previous Page
Loading...
110Q528.1A LA 7.
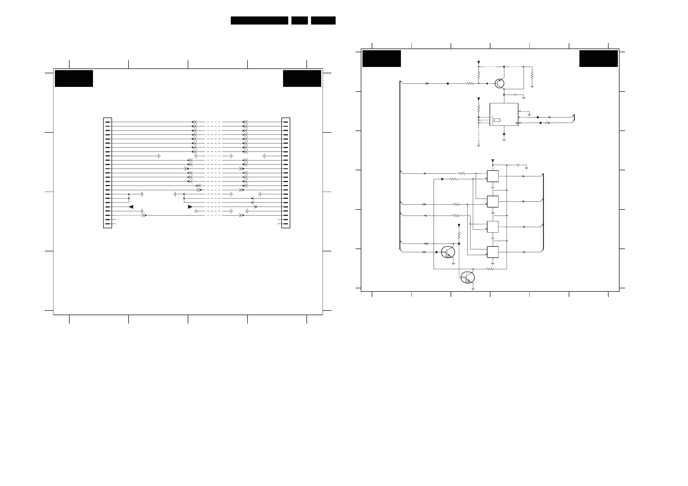
Circuit Diagrams and PWB Layouts
SSB: PNX85xx: Debug
1
9H21 A3
9H22 A3
B
A
D
9H23 B3
34
9H35 B3
9H39 C3
9H40 C3
9H41 C3
9H42 C3
9H43 C3
9H27 B3
9H28 B3
9H29 B3
4
A
B
C
2
1
9H32 B3
9H33 B3
9H34 B3
23
9H44 C3
PNX85xx: DEBUG
9H24 B3
9H25 B3
9H26 B3
D
9H20 A3
9H30 B3
9H31 B3
C
9H36 B3
9H37 C3
9H38 C3
9H32
9H31
9H30
9H29
+3V3-STANDBY
9H36
9H23
9H20
9H34
9H35
47
49
5
7
9
11
13
15
17
27
29
31
33
35
37
3
39
41
43
45
1
19
21
23
25
9H40
1H10-1
ROW_1
FTSH-125-01-L-DV
9H26
9H27
9H25
9H21
9H22
9H28
6
8
10
12
14
16
18
32
34
36
38
4
40
42
44
46
48
50
2
20
22
24
26
28
30
1H10-2
ROW_2
FTSH-125-01-L-DV
9H42
9H41
9H33
+3V3-STANDBY
9H37
9H24
9H38
9H39
RES
RES
RESET-NVM_WP-NANDFLASH
RESET-STBY
ENABLE-1V2
REGIMBEAU_CVBS-SWITCH
ENABLE-3V3
CTRL1-STBY_LAMP-ON
AUDIO-RESET
UART-SWITCH
LED1-3V3
DV-B2_DEBUG-BREAK
EJTAG-DETECT
AV1-BLK
ON-MODE
POD-MODE
DETECT-5V-12V
CTRL4-STBY_SELECT-PWM-ANA
CTRL3-STBY_POWER-OK-DISP
ALE
PSEN
EA
RESET-STBY-J
P0.1
P0.2
P0.3
P0.0
P0.4
P0.5
P0.6
P0.7
P2.0
P2.1
P2.2
P2.3
P2.4
P2.5
P2.6
P2.7
B04B B04B
3104 313 6198.3
H_16790_009.eps
160807
SSB: PNX85xx: NVM / UART Switch
1
X1
1
1
X1
1
1
X1
1
SCL
ADR
0
1
2SDA
WC
1
X1
1
123
FHC6 A2
FHC7 C4
IH21 B3
IHC0 A3
IHC1 B4
IHC2 A4
6
A
B
3HC6 E3
3HC7 E3
3HC8 F3
3HC9 B3
7HC0-1 C3
7HC0-2 D3
7HC0-3 E3
7HC0-4 E3
A
3HC1 A5
3HC2 A3
3HC3 D3
234
FHC1 B5
M24C64
MAIN NVM
5
PNX 85xx: NVM /UART SWITCH
3HC4 D3
3HC5 D3
7HC1 F2
7HC2 F3
7HC3 B4
7HC4 A4
B
C
D
E
F
C
D
E
F
9HC0 A3
9HC1 A4
9HC2 C3
100R
2HC0 B4
2HC1 C4
3HC0 A3
456
1
FHC2 B5
FHC3 D2
FHC4 E3
FHC5 F2
3HC4
+3V3-STANDBY
FHC5
10K
3HC9
3HC6
100R
9
IHC2
6
714
8
7
14
4
3
7HC0-3
74HC4066PW
7HC0-2
74HC4066PW
5
+5VS
3HC7
10K
IHC1
3HC2
10K
IH21
FHC3
100n
2HC0
RES
9HC1
FHC2
IHC0
9HC2
714
11
10
7HC0-4
74HC4066PW
12
3
2
FHC1
7HC1
PDTC114EU
1
10K
3HC0
9HC0
+5VS
100R
3HC5
1
2
FHC6
13
714
1
3
2
7HC0-1
74HC4066PW
7HC2
PDTC114EU
10K
3HC8
FHC4
100R
3HC3
7
3HC1
100K
1
2
3
6
5
84
7HC3
EEPROM
Φ
(8Kx8)
100n
2HC1
FHC7
+3V3-STANDBY
BC857BW
7HC4
TXD-MIPS
RXD-UP
RXD-MIPS
TXD-UP
RESET-NVM_WP-NANDFLASH
SCL-UP-MIPS
SDA-UP-MIPS
UART-SWITCH
UART-SWITCHn
RXD
UART-SWITCHn
TXD
B04C B04C
3104 313 6198.3
H_16790_010.eps
160807

Table of Contents

Related product manuals