EasyManua.ls Logo

Potter PFC-6800 - SLC Circuit Wiring; SLCE Wiring Configurations

Potter PFC-6800
133 pages
Print Icon
To Next Page IconTo Next Page
To Next Page IconTo Next Page
To Previous Page IconTo Previous Page
To Previous Page IconTo Previous Page
Loading...
3-44

SLC Circuit Wiring

circuit wiring.
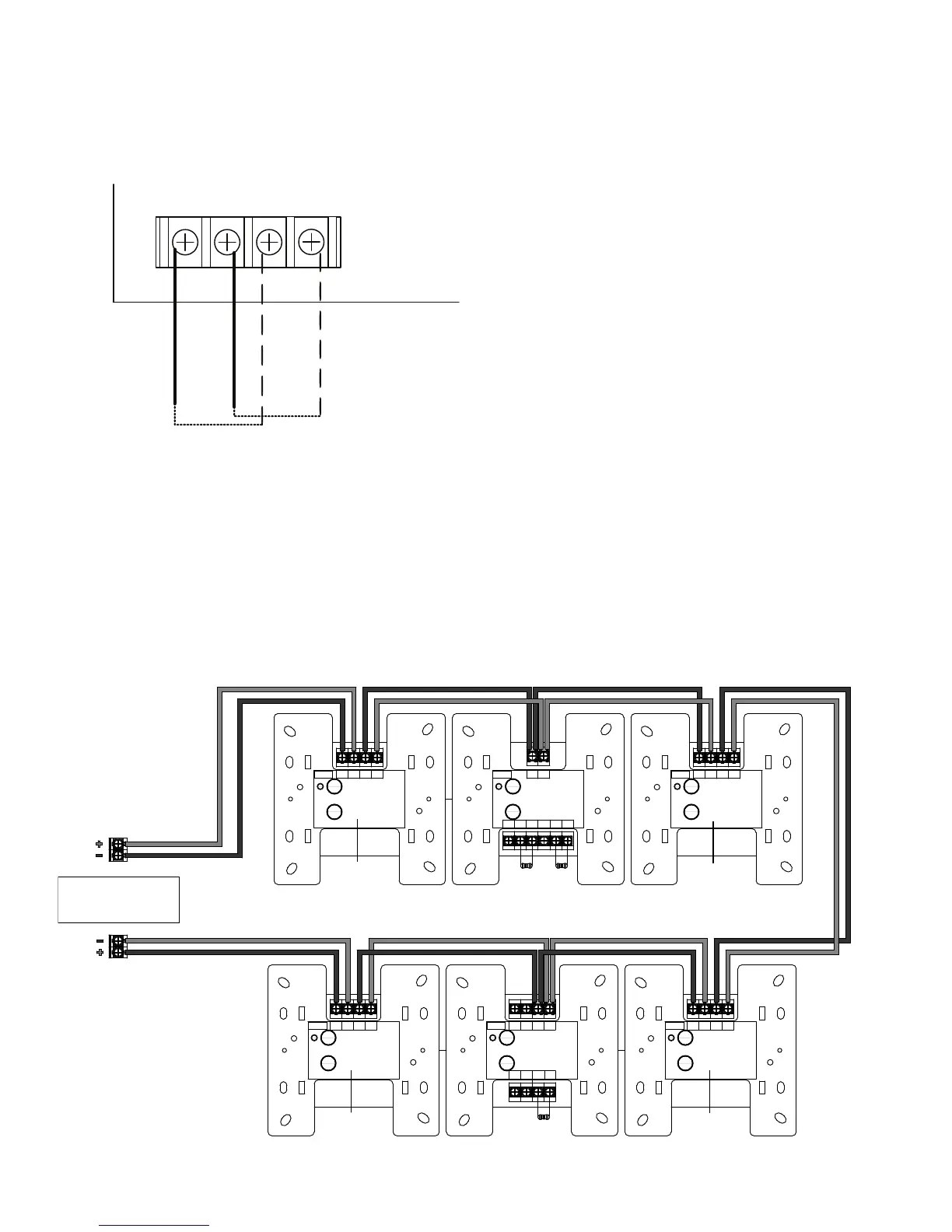
Example of SLC-127 Terminals WiringFigure 56.
SLC OUT SLC RET
- + - +
SLC
wiring to
SLC
devices
SLC
Return
wiring
(Class-A
only)
Notes:
1.
2.
3.
4.
5.
6.
SLCE Wiring Congurations

Example of SLCE-127 Class A Style 7 WiringFigure 57.
Address No.
Potter Electric Signal Company
FIRE ALARM EQUIPMENT
XXXX
Address No.
Potter Electric Signal Company
FIRE ALARM EQUIPMENT
XXXX
24- 24+ S- S+
B- B+ A- A+
Conventional Initiating Zone Module
Model No. CIZM-4
Ser. No. xxxxxx
Document: TN51313e date:XX.XX.2009
Compatibility Identier: INTE01
WARNING :
Power supply for terminals 24+ and 24- must
be power limited
All Terminals are power limited.
S- S+
Z2 C2 Z1 C1
NO2
(NC2)
NO1
(NC1)
Dual Contact Module
Model No. DCM-4
Ser. No. xxxxxx
Document: TN51316e date:XX.XX.2009
WARNING :
All Terminals are power limited.
SIGNALING
LISTED
L
U
SIGNALING
LISTED
L
U
SLCE Loop (Class A Style 7)
Terminal Connections
5.1kΩ 5.1kΩ
5.1kΩ
Address No.
Potter Electric Signal Company
FIRE ALARM EQUIPMENT
XXXX
S-1 S+1
Short Circuit Isolater
Model No. SCI
Ser. No. xxxxxx
Document: TN51313e date:XX.XX.2009
WARNING :
All Terminals are power limited.
SIGNALING
LISTED
L
U
S-2 S+2
Address No.
Potter Electric Signal Company
FIRE ALARM EQUIPMENT
XXXX
S-1 S+1
Short Circuit Isolater
Model No. SCI
Ser. No. xxxxxx
Document: TN51313e date:XX.XX.2009
WARNING :
All Terminals are power limited.
SIGNALING
LISTED
L
U
S-2 S+2
Address No.
Potter Electric Signal Company
FIRE ALARM EQUIPMENT
XXXX
S-1 S+1
Short Circuit Isolater
Model No. SCI
Ser. No. xxxxxx
Document: TN51313e date:XX.XX.2009
WARNING :
All Terminals are power limited.
SIGNALING
LISTED
L
U
S-2 S+2
Address No.
Potter Electric Signal Company
FIRE ALARM EQUIPMENT
XXXX
S-1 S+1
Short Circuit Isolater
Model No. SCI
Ser. No. xxxxxx
Document: TN51313e date:XX.XX.2009
WARNING :
All Terminals are power limited.
SIGNALING
LISTED
L
U
S-2 S+2
SCI
SCI
SCI
SCI
DWG #610-3
DWG #602-15

Table of Contents

Related product manuals