EasyManua.ls Logo

ROBOTIQ AX10 - Page 151

ROBOTIQ AX10
154 pages
Print Icon
To Next Page IconTo Next Page
To Next Page IconTo Next Page
To Previous Page IconTo Previous Page
To Previous Page IconTo Previous Page
Loading...
AX10 Palletizing Solution
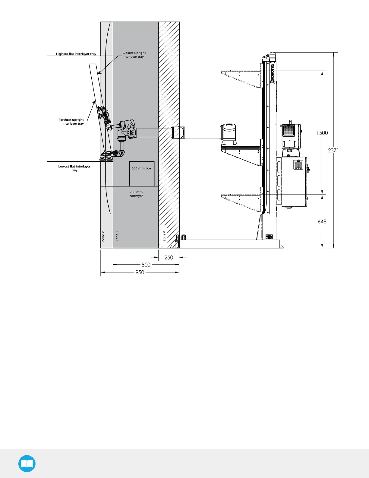
The figure above is a side view of the recommended palletizing cell layout and distances, with the handling of 300 mm square
boxes.

Related product manuals