EasyManua.ls Logo

SENTRON PAC4200 - Connecting the PAC RS485 expansion module

SENTRON PAC4200
284 pages
Print Icon
To Next Page IconTo Next Page
To Next Page IconTo Next Page
To Previous Page IconTo Previous Page
To Previous Page IconTo Previous Page
Loading...
Connecting
6.6 Connecting the PAC RS485 expansion module
SENTRON PAC4200
96 System Manual, 09/2009, A5E02316180B-02
6.6 Connecting the PAC RS485 expansion module
Procedure
Connect the PAC RS485 expansion module to the RS 485 bus. Please pay attention to the
general topology of the twisted-pair cable.
SXOOXS
38
SXOOGRZQ
3'
&RPPRQ
*URXQG
%DODQFHG3DLU
0DVWHU
6ODYH 6ODYHQ
%
9
7(57(5
$
'
5
'
5
'
5
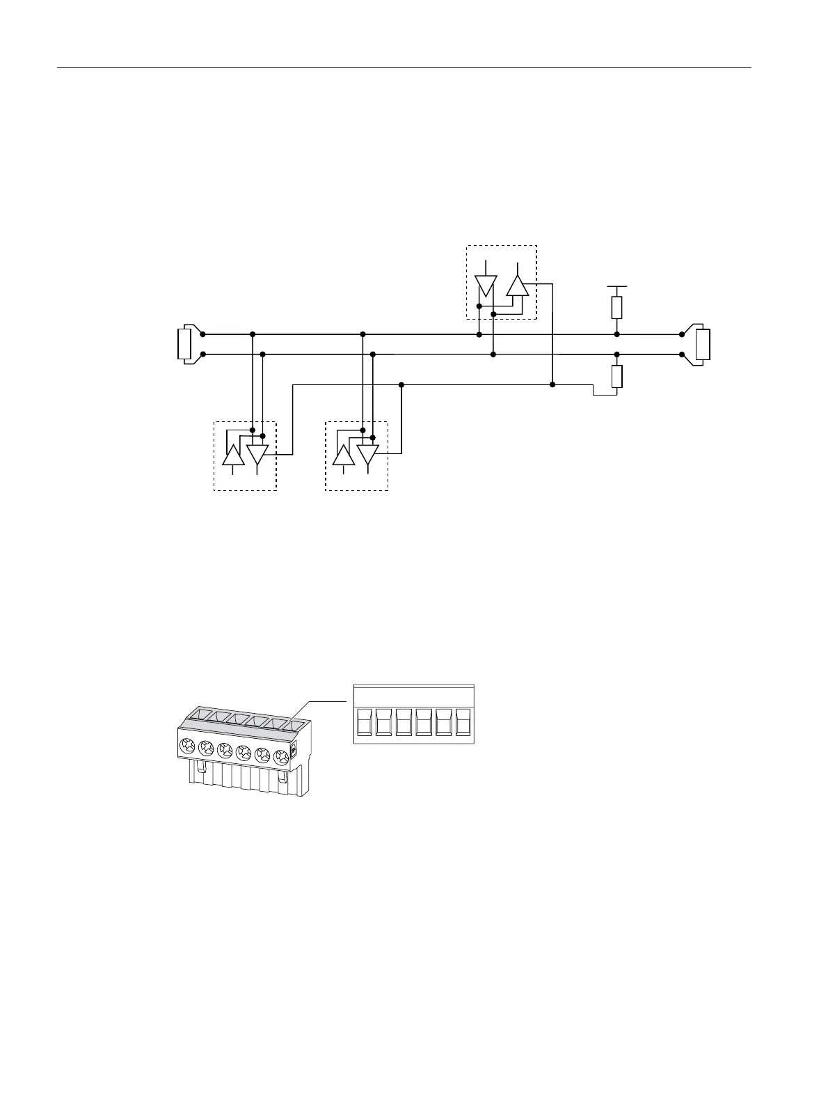
+/B B signal; D1
-/A A signal; D0
COM Common = Ground
TER (Line) Termination = bus terminating resistor
PU Pull-up resistor
PD Pull-down resistor
Figure 6-23 Block diagram: General topology of the twisted-pair cable
&RP % $ 7HU 38 3'
Figure 6-24 Terminal assignment
1. Connect the cables to the appropriate screw terminals on the terminal block. You can find
the assignments of the terminals in the figure "Terminal assignment".
2. Connect the cable shield at one end with protective ground PE.
3. Connect the signal Common with protective ground. This grounds the expansion module.
4. On the first and last communication nodes, switch a bus terminating resistor between the
positive signal and the negative signal. A 120-Ohm bus terminating resistor is
implemented in the PAC RS485 expansion module for this purpose. In the case of other

Table of Contents