EasyManua.ls Logo

Siemens 6SL3120-2TE21-0AA3

Siemens 6SL3120-2TE21-0AA3
499 pages
To Next Page IconTo Next Page
To Next Page IconTo Next Page
To Previous Page IconTo Previous Page
To Previous Page IconTo Previous Page
Loading...
Line Modules Booksize
4.5 Active Line Modules Liquid Cooled
Booksize Power Units
224 Manual, (GH2), 04/2014, 6SL3097-4AC00-0BP6
4.5.5
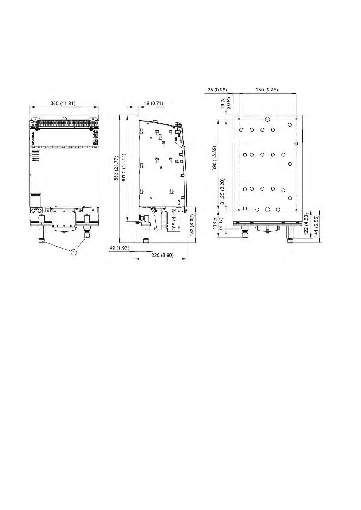
Dimension drawing
Pipe thread ISO 228 G ½ B.
Figure 4-42 Dimension drawing of Active 120 kW Line Module Liquid Cooled, all dimensions in mm and (inches)
Artisan Technology Group - Quality Instrumentation ... Guaranteed | (888) 88-SOURCE | www.artisantg.com

Table of Contents

Related product manuals