EasyManua.ls Logo

Siemens 6SL3120-2TE21-0AA3

Siemens 6SL3120-2TE21-0AA3
499 pages
To Next Page IconTo Next Page
To Next Page IconTo Next Page
To Previous Page IconTo Previous Page
To Previous Page IconTo Previous Page
Loading...
Line Modules Booksize
4.8 Smart Line Modules with internal air cooling
Booksize Power Units
290 Manual, (GH2), 04/2014, 6SL3097-4AC00-0BP6
4.8.6
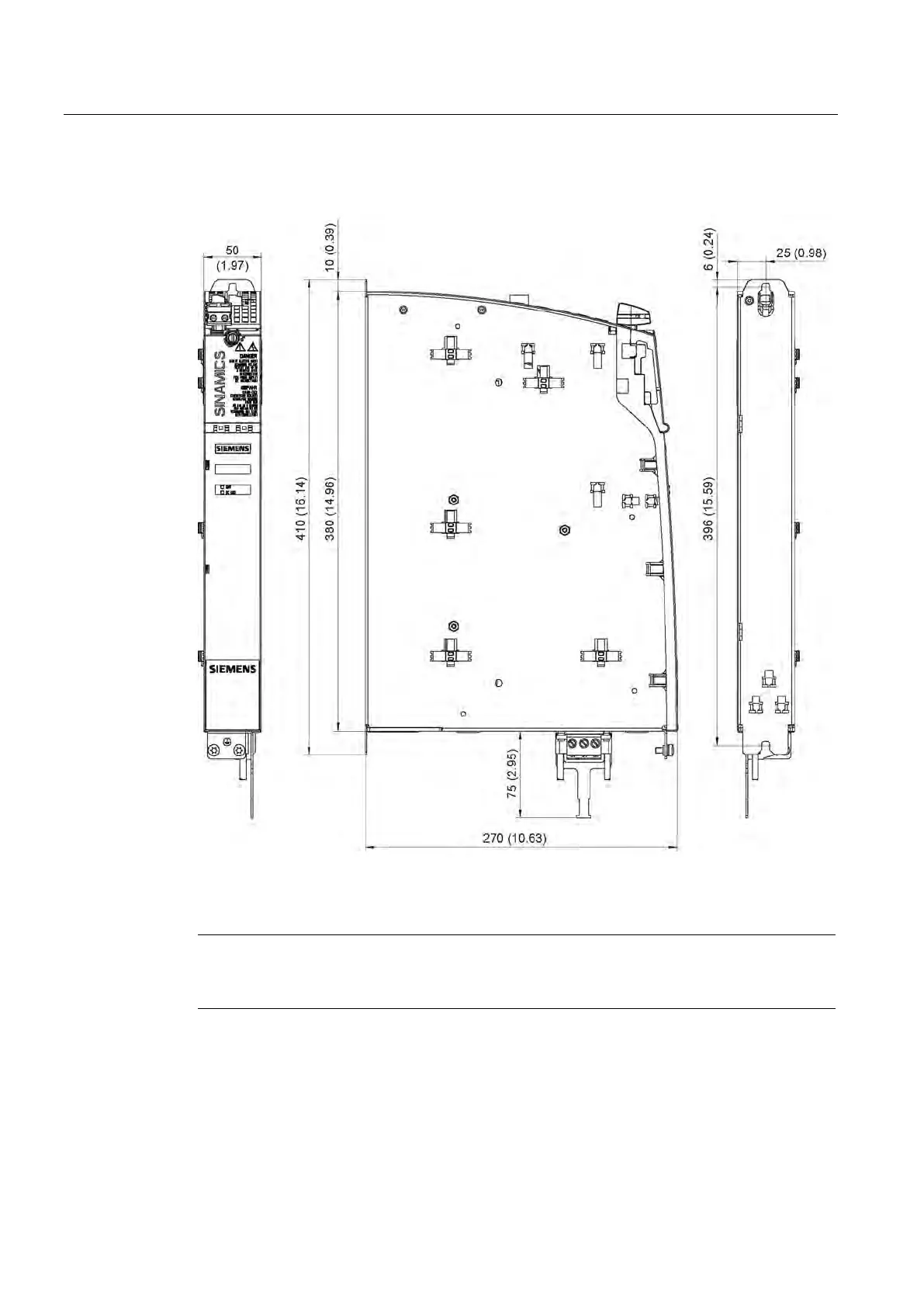
Dimension drawings
Figure 4-80 Dimension drawing of 5 kW and 10 kW Smart Line Modules with internal air cooling, all
dimensions in mm and (inches)
Note
The shield connecting plate is integrated in the line connector of the 50 mm Smart Line
Modules.
Artisan Technology Group - Quality Instrumentation ... Guaranteed | (888) 88-SOURCE | www.artisantg.com

Table of Contents

Related product manuals