EasyManua.ls Logo

Siemens 6SL3120-2TE21-0AA3

Siemens 6SL3120-2TE21-0AA3
499 pages
To Next Page IconTo Next Page
To Next Page IconTo Next Page
To Previous Page IconTo Previous Page
To Previous Page IconTo Previous Page
Loading...
Line connection and line-side power components
3.7 Line filters
Booksize Power Units
74 Manual, (GH2), 04/2014, 6SL3097-4AC00-0BP6
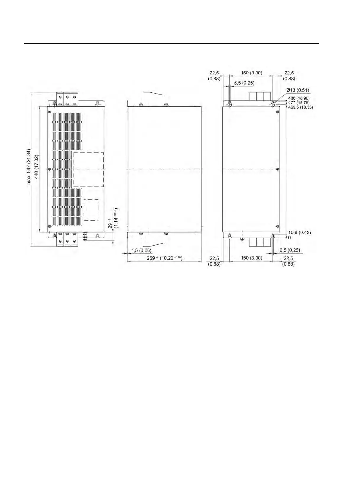
Figure 3-14 Dimension drawing of Wideband Line Filter 80 kW for Active Lines Modules, all dimensions in mm and
(inches)
Artisan Technology Group - Quality Instrumentation ... Guaranteed | (888) 88-SOURCE | www.artisantg.com

Table of Contents

Related product manuals