EasyManua.ls Logo

Siemens SIRIUS 3RH Series - Page 293

Siemens SIRIUS 3RH Series
786 pages
To Next Page IconTo Next Page
To Next Page IconTo Next Page
To Previous Page IconTo Previous Page
To Previous Page IconTo Previous Page
Loading...
SIRIUS 3RT2 contactors/contactor assemblies
2.9 Dimension drawings (dimensions in mm)
SIRIUS Innovations
System Manual, 01/2011, A8E56203870002-03
293
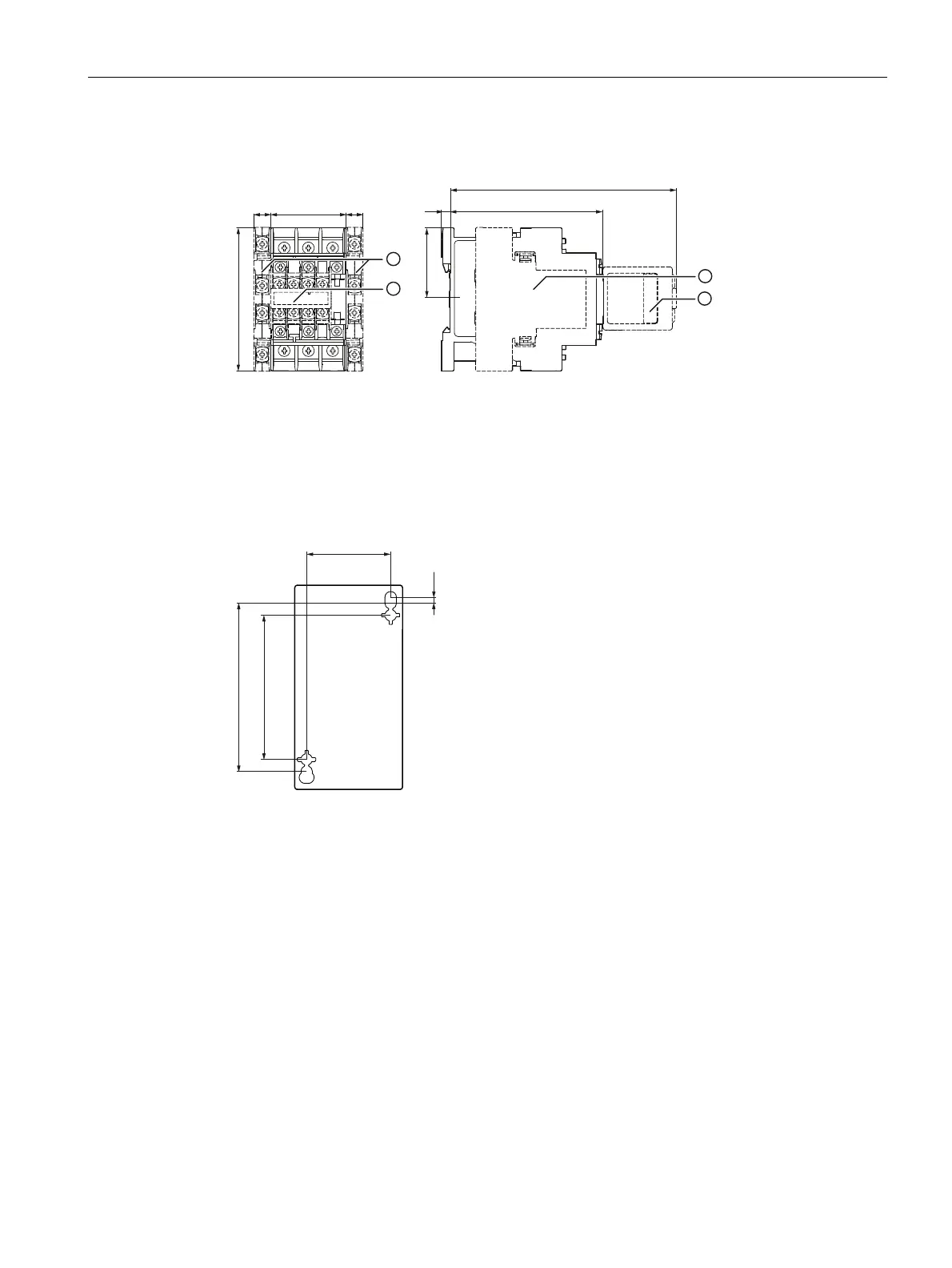
3RT2.2.-4 contactors (3-pole) in ring cable lug connection system with accessories mounted




$&'&
$&'&
1 Laterally mountable auxiliary switch block 3RH2921-4DA..
2 Auxiliary switch block for mounting on the front 3RH2911-4FA.. / -4GA.. / -4HA.. / -4NF..
Figure 2-50 3RT2.2.-4 contactors (ring cable lug connection system) with auxiliary switch blocks
mounted
Drilling plan for 3RT2.2. contactors




Figure 2-51 Drilling plan for 3RT2.2. contactors (size S0)

Table of Contents

Other manuals for Siemens SIRIUS 3RH Series

Related product manuals