EasyManua.ls Logo

Systema EOLO BC RT - Page 41

Systema EOLO BC RT
88 pages
Print Icon
To Next Page IconTo Next Page
To Next Page IconTo Next Page
To Previous Page IconTo Previous Page
To Previous Page IconTo Previous Page
Loading...
41
4
SYSTEMA EOLO RT rev. 09ENIT04052021
ELECTRICAL CONNECTION
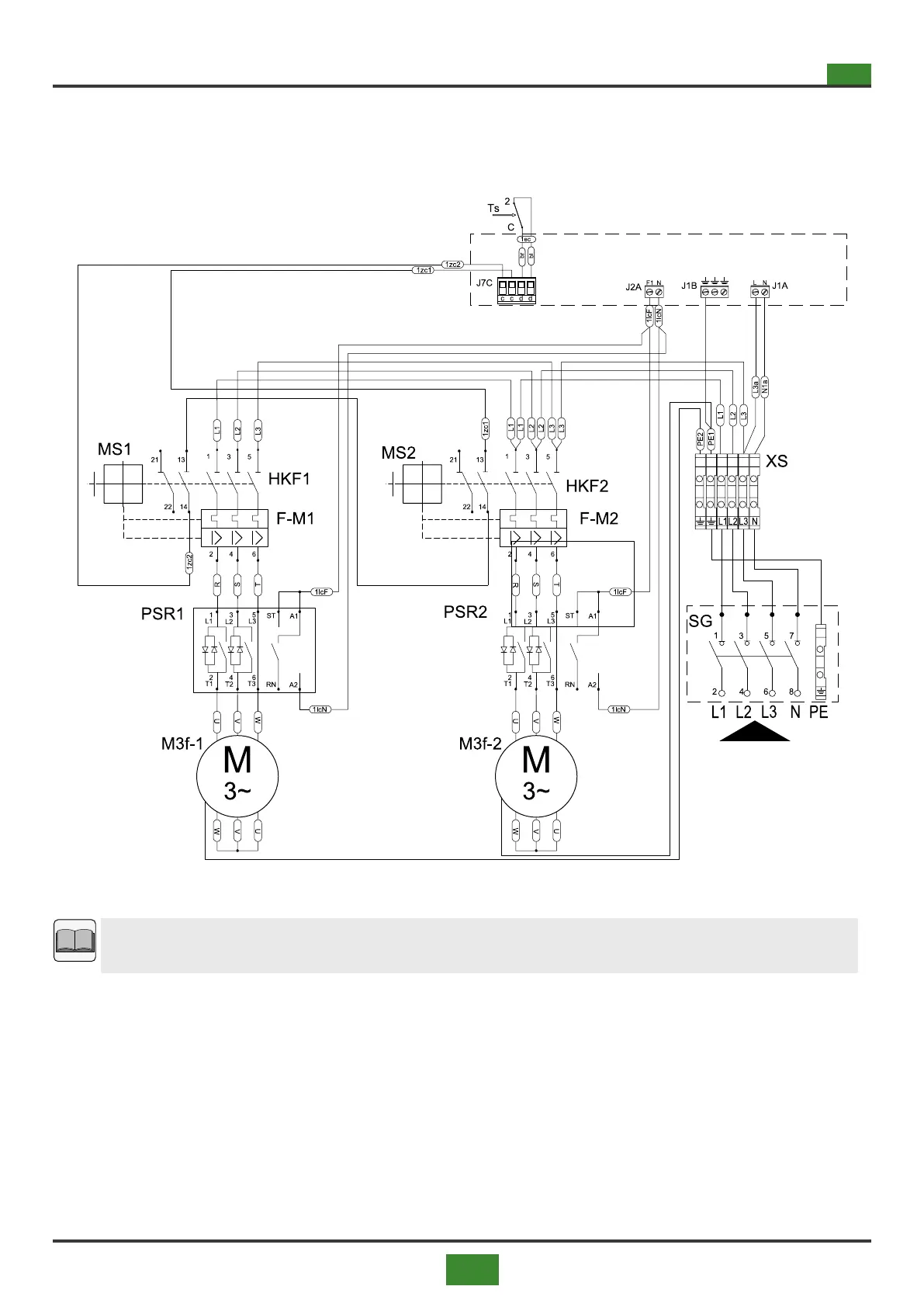
APPLIANCES WITH TWO FANS AND THREE-PHASE AC ASYNCHRONOUS MOTORS
Connection to motherboard
SCP674V130A1
POWER SUPPLY
3N/PE~50Hz 400V
Fig. 4.11 Electrical connection of two fans with soft-start
Please note
For the complete wiring of the appliance see also paragraphs 4.1.3 to 4.1.9.
Legend gs. 4.10 and 4.11
F-M1 = Fan magnetothermic protection
F-M2 = Second fan magnetothermic protection HKF1 =
Overload and maximum thermal release
current for the fan motor
HKF2 = Overload and overcurrent thermal release for the
second fan motor
M3f-1 = Three-phase centrifugal fan motor
M3f-2 = Second three-phase centrifugal fan motor MS1 =
Free opening mechanism
MS2 = Free opening mechanism for the second fan
PSR1 = Soft-start fan motor starter
PSR2 = Soft-start starter for the second fan motor
SG = General switch (see g. 4.1 on page 33) Ts = Safety
thermostat with automatic reset
XS = Power line terminal board located in the burner hou-
sing

Table of Contents