EasyManua.ls Logo

SystemAir SAVE VTR 700 - Transport Och Förvaring; Tekniska Data; Mått Och Vikt, Högerutförande

SystemAir SAVE VTR 700
226 pages
To Next Page IconTo Next Page
To Next Page IconTo Next Page
To Previous Page IconTo Previous Page
To Previous Page IconTo Previous Page
Loading...
62
| Produktinformation
SV
Exempel när kondens aggregatets utsida kan inträffa:
Exempel A: Om aggregatet installeras i utrymmen där temperaturen är 22°C och utomhustemperaturen är - 15°C,
kommer dagg att börja hopa sig när den relativa luftfuktigheten är 46% eller högre.
Exempel B: Om aggregatet installeras i utrymmen där temperaturen är 20°C och utomhustemperaturen är -25°C,
kommer dagg att börja hoppa sig när den relativa luftfuktigheten är 34% eller högre.
5.4 Transport och förvaring
SAVE VTR 700 ska lagras och transporteras sådant sätt att det skyddas mot fysiska skador paneler med mera. Ag-
gregatet bör täckas att damm, regn och snö inte kan tränga in och skada det och dess komponenter.
Aggregatet levereras i ett stycke, som innehåller alla nödvändiga komponenter. Det är inslaget i plast och står en pall
för att underlätta transporten.
5.5 Tekniska data
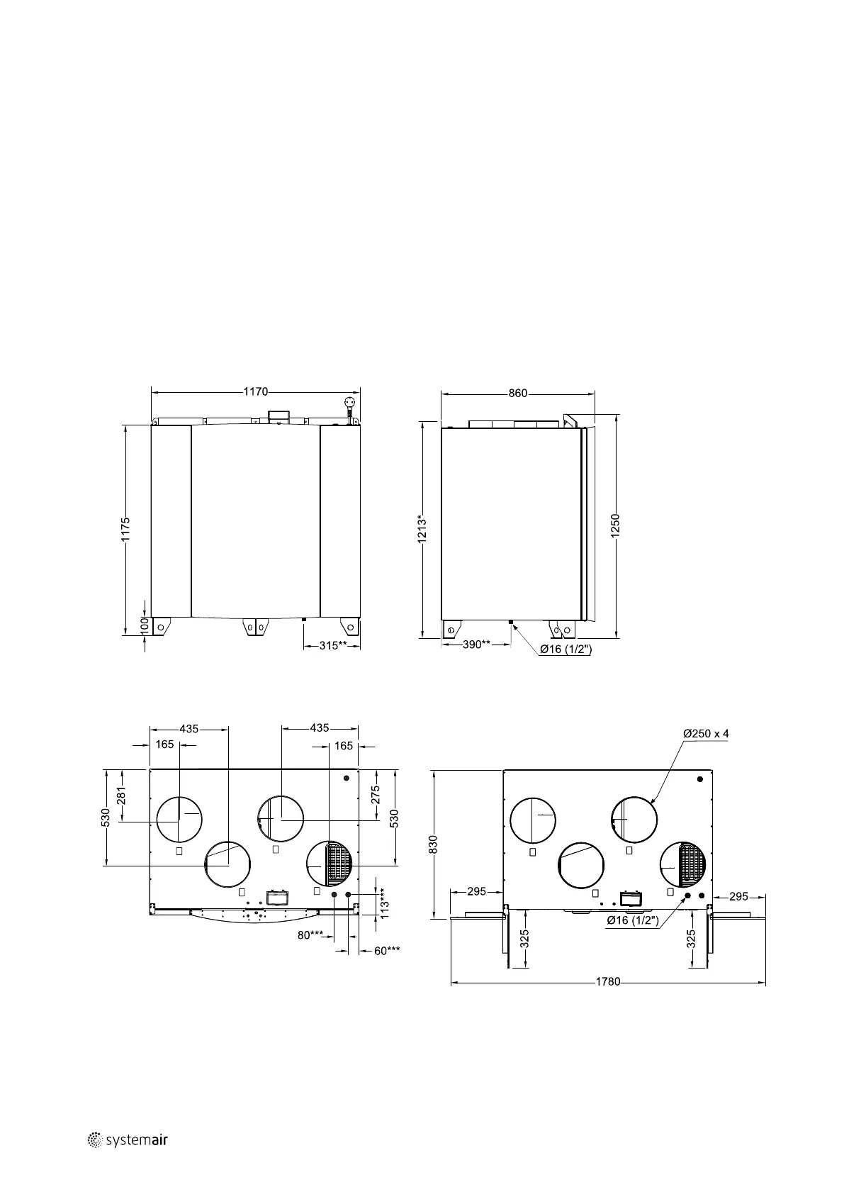
5.5.1 Mått och vikt, högerutförande
Fig. 1 Mått av högeranslutet aggregat
* Höjd med monteringsfäste
** Dräneringsanslutning
* Anslutningar av vattenbatteri.
Aggregatets vikt är 188 kg.
2114801 | B003

Table of Contents

Other manuals for SystemAir SAVE VTR 700

Related product manuals