EasyManua.ls Logo

Tokheim QUANTIUM 410 - Page 17

Tokheim QUANTIUM 410
102 pages
Print Icon
To Next Page IconTo Next Page
To Next Page IconTo Next Page
To Previous Page IconTo Previous Page
To Previous Page IconTo Previous Page
Loading...
Document Ref 909342-001 Rev 11 Page 2-3
Quantium 410 Installation Manual Site Preparation
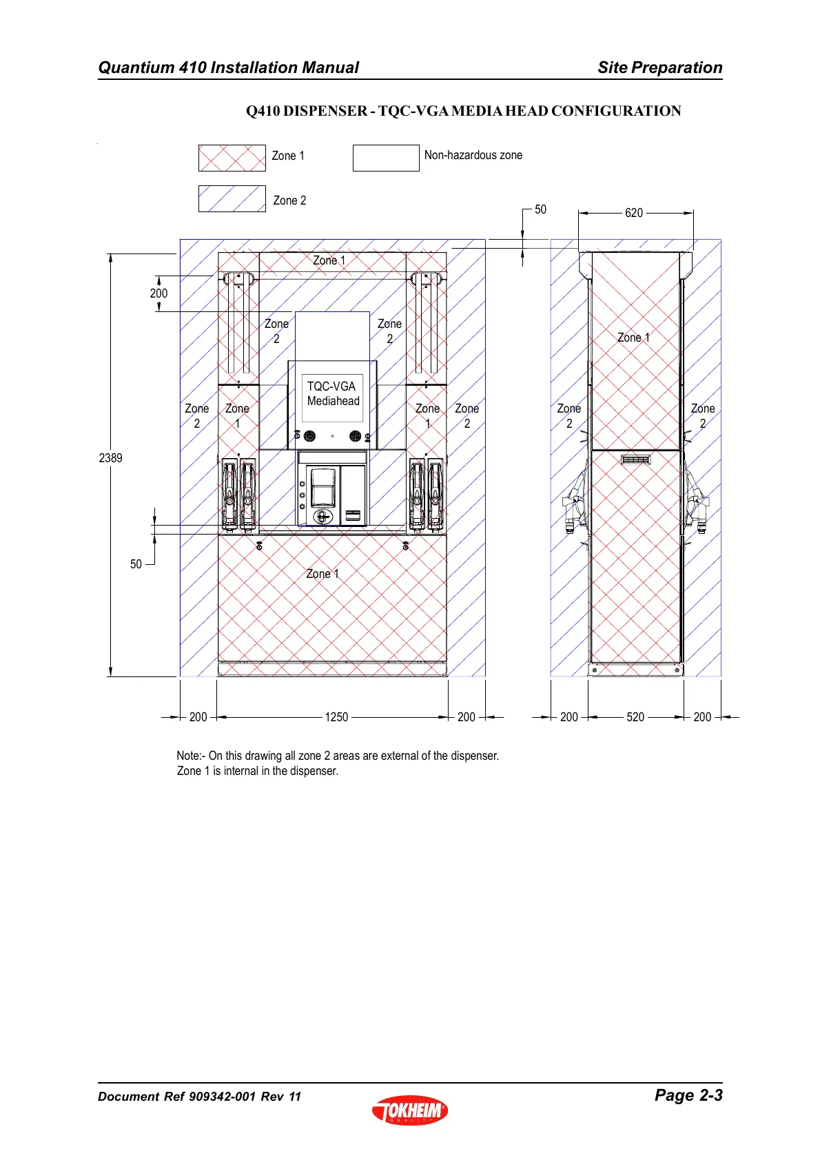
Q410 DISPENSER - TQC-VGA MEDIA HEAD CONFIGURATION
1250 200200
50
2389
520200
200
50
200
Zone 1
Zone
2
Zone 1
Zone
1
Zone
1
Zone
2
Zone
2
Zone
2
Zone
2
Zone
2
Zone 1
TQC-VGA
Mediahead
Zone 1
Zone 2
Non-hazardous zone
620
Note:- On this drawing all zone 2 areas are external of the dispenser.
Zone 1 is internal in the dispenser.

Table of Contents

Related product manuals