EasyManua.ls Logo

Uponor Smatrix Base PULSE - 5.10 Connect output to room controller relays

Uponor Smatrix Base PULSE
96 pages
Print Icon
To Next Page IconTo Next Page
To Next Page IconTo Next Page
To Previous Page IconTo Previous Page
To Previous Page IconTo Previous Page
Loading...
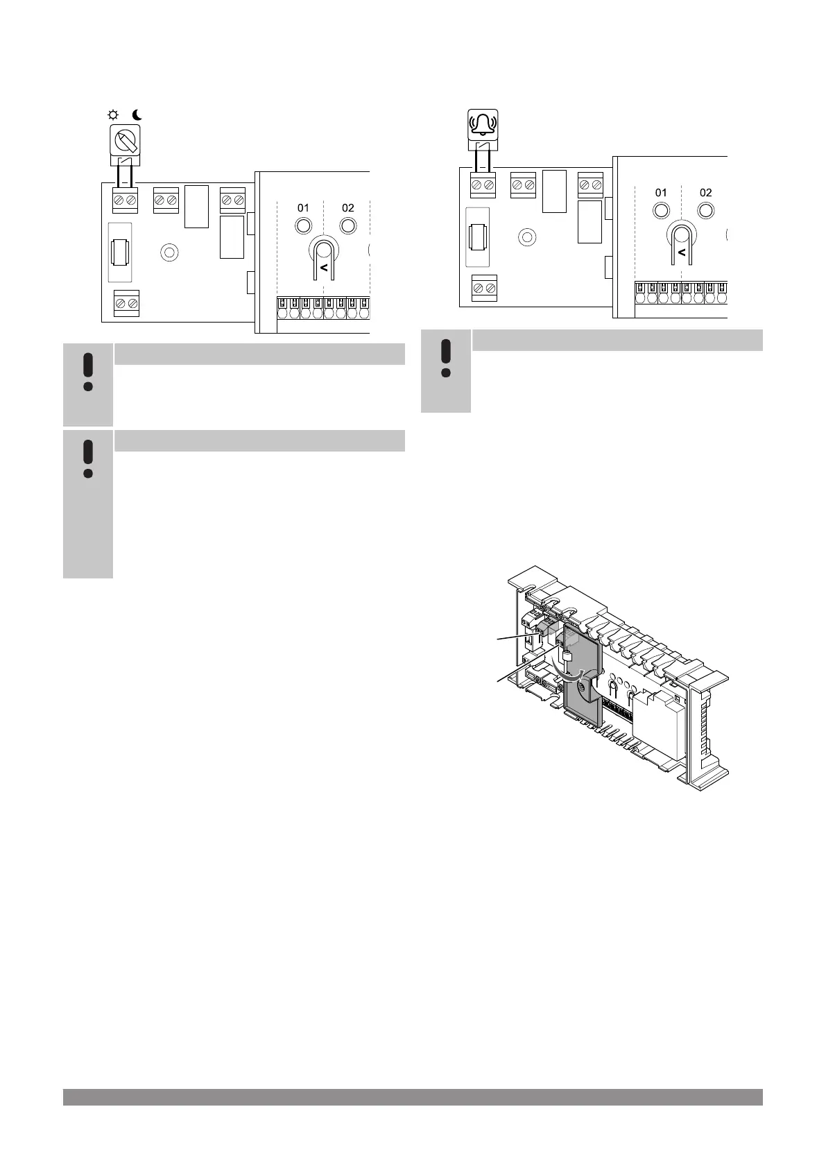
Comfort/ECO switch (requires communication
module)
GPI
WD0000001
Note
In systems with a communication module installed, the
function of the GPI is selected in Installer settings
during initial configuration, or in the System settings
menu.
Note
Use only one Comfort/ECO switch in the system.
Connecting external Comfort/ECO switch to the
system (public thermostat system device, or GPI),
disables Forced ECO in the Uponor Smatrix PULSE
app.
Connecting the external Comfort/ECO switch via the
public thermostat system device, disables the
Comfort/ECO option in the GPI.
1. Ensure that the power is disconnected from both the room
controller and the Comfort/ECO switch (dry contact).
2. Route the cable to/from the Comfort/ECO switch input via a
cable entry.
3. Connect the cable to the room controller connector labelled GPI.
General System Alarm (requires
communication module)
GPI
WD0000002
Note
In systems with a communication module installed, the
function of the GPI is selected in Installer settings
during initial configuration, or in the System settings
menu.
1. Ensure that the power is disconnected from both the room
controller and the unit to receive an alarm signal from.
2. Route the cable to/from the other unit via a cable entry.
3. Connect the cable to the room controller connector labelled GPI.
5.10 Connect output to room
controller relays
Relay 1
(PUMP)
Relay 2
(BOILER)
CD0000008
30
|
Uponor Smatrix Base PULSE
|
Installation and operation manual

Table of Contents

Other manuals for Uponor Smatrix Base PULSE

Related product manuals