EasyManua.ls Logo

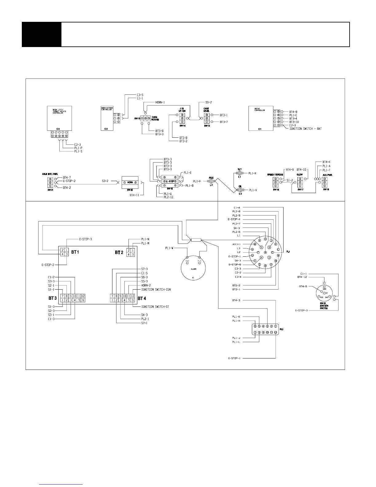
Upright SB80 - Figure 5-11: Upper Controller Wiring Diagram

Upright SB80
186 pages
Print Icon
To Next Page IconTo Next Page
To Next Page IconTo Next Page
To Previous Page IconTo Previous Page
To Previous Page IconTo Previous Page
Loading...
5-12 SB80 Work Platform - European
S
CHEMATICS
Section
5.3
Figure 5-11: Upper Controller wiring Diagram

Table of Contents

Related product manuals