EasyManua.ls Logo

Vertiv Tech SmartCabinet2-E Series - Load Bearing Capacity; System Architecture; Cabinet Structural Components; Power Supply and Distribution System

Default Icon
87 pages
Print Icon
To Next Page IconTo Next Page
To Next Page IconTo Next Page
To Previous Page IconTo Previous Page
To Previous Page IconTo Previous Page
Loading...
SmartCabinet2-E Series Computer Room Solution Product User Manual
4 Chapter 1 Product Overview
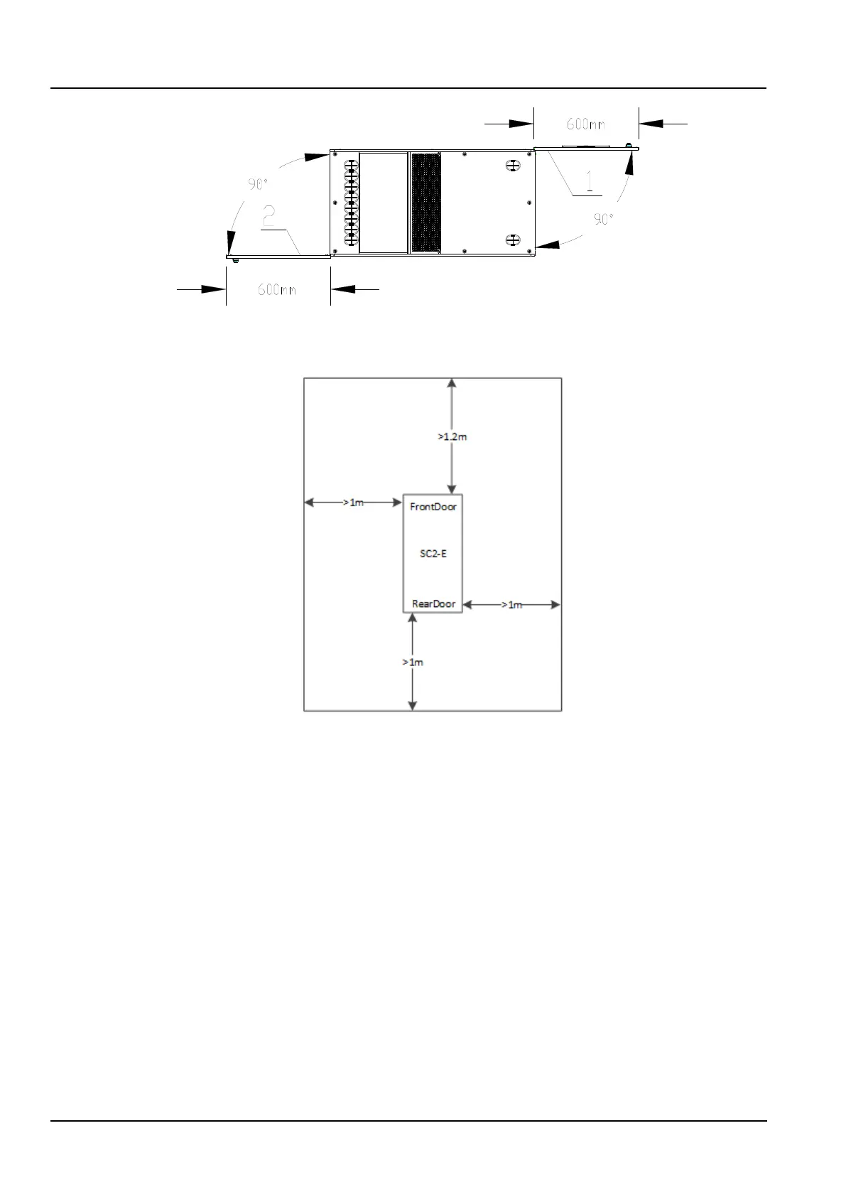
1. Front door of cabinet 2. Rear door of cabinet
Figure 1-3 SmartCabinet2-E Product Maintenance Space
The space using requirements of SmartCabinet 2-E model product are shown in Figure 1-4.
Figure 1-4 SmartCabinet2-E product using space
1.5.4 Load Bearing Capacity
The SmartCabinet 2-E product is heavier after the user equipment is installed in it, so the load-bearing capacity of the
computer room must be considered before installation. The SmartCabinet 2-E weighs about 350 kg. During
installation, it is necessary to evaluate the floor load-bearing according to the total weight of the equipment installed
by the users. If you can't determine, please consult the Vertiv office or the service center nearby.
1.6 System Architecture
1.6.1 Cabinet Structural Components
The cabinet adopts integrated sealed cold and hot aisle cabinet, which is used to install 19-inch hardware equipment
in line with industry standard (EIA-310-E), including server, voice, data, Internet network equipment and other
equipment. The whole rack system is fully sealed to keep the system clean, dust-free, energy-saving and noise
reduction (system noise 50dB with ECO mode).
1.6.2 Power Supply and Distribution System
The SmartCabinet 2-E product integrates ITA2 6kVA UPS, PMU and intelligent switch PDU components, provides
AC220V and DC12V/24V output, and provides a safe and reliable power supply system for the whole system and IT
load.
The SmartCabinet 2-E product integrates the latest ITA2 6kVA UPS, provides distribution support for IT load, air
conditioner equipment, ECO module, monitoring system and illumination system.

Table of Contents