EasyManua.ls Logo

Vertiv Liebert CRV - Page 174

Vertiv Liebert CRV
194 pages
Print Icon
To Next Page IconTo Next Page
To Next Page IconTo Next Page
To Previous Page IconTo Previous Page
To Previous Page IconTo Previous Page
Loading...
REV : 8
REV DATE : 1/17
DPN002813
Page :1 /1
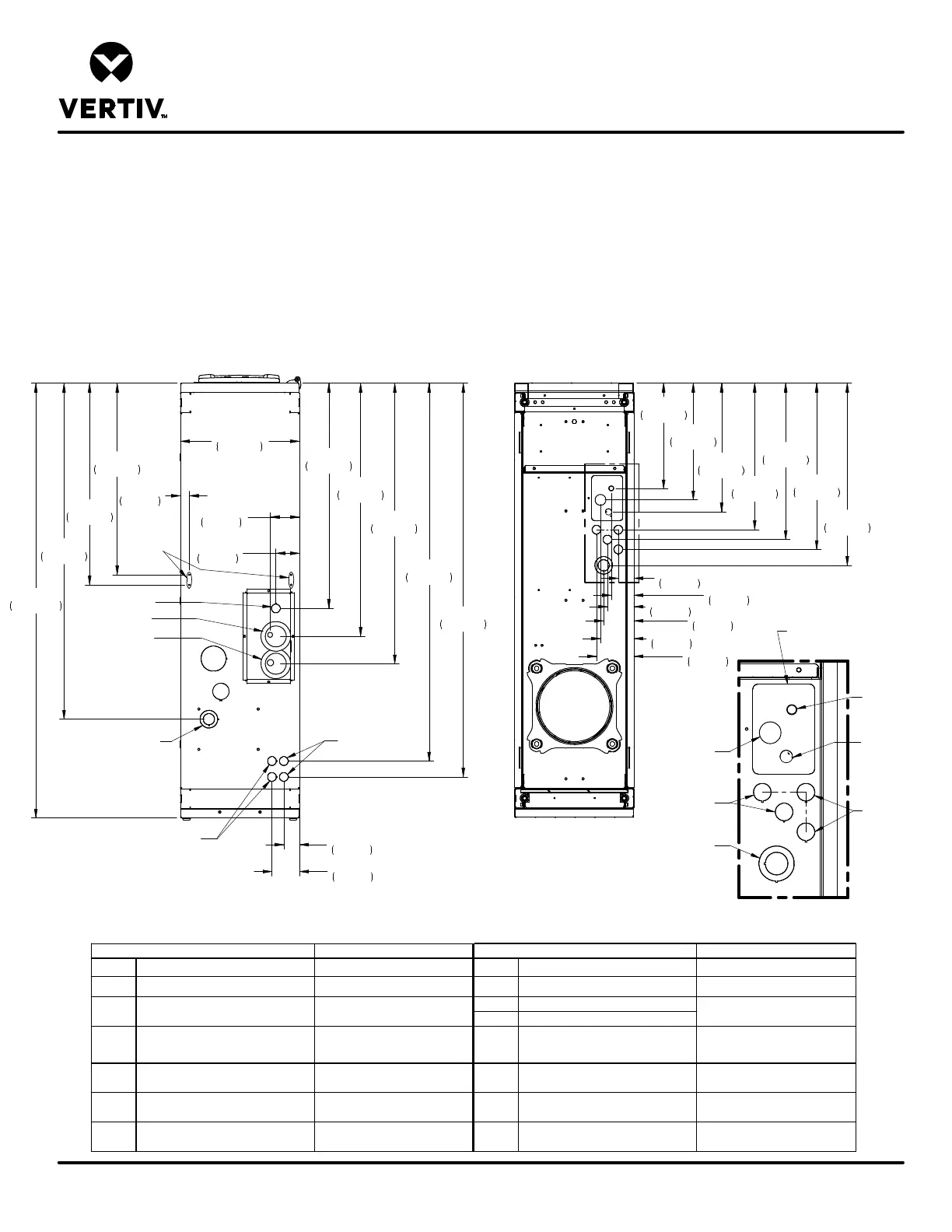
300mm (12in.) AIR COOLED MODELS
Form No.: DPN001040_REV4
PRIMARY CONNECTION LOCATIONS
LIEBERT CRV
TOP CONNECTIONS
BOTTOM CONNECTIONS
(possible with raised floor)
PIPING AND ELECTRICAL CONNECTIONS AVAILABLE AT THE TOP AND
BOTTOM OF UNIT.
ATTENTION
, AIR COOLED SYSTEMS MAY REQUIRE ADDITIONAL OIL TO BE
ADDED IN THE FIELD IN ORDER TO ALLOW FOR SUFFICIENT COMPRESSOR
LUBRICATION. SEE UNIT USER MANUAL FOR DETAILS.
FRONT OF UNIT
FRONT OF UNIT
2 3/8"
60mm
1 9/16"
40mm
HVT
GD/CPB
HVB
LVB2
LVB1
LVT1
RGB
RLB
RLT
RGT
CPT
LVT2
15 9/16"
395mm
12 13/16"
325mm
18 1/8"
460mm
14 9/16"
370mm
1 9/16"
39mm
3"
76mm
2 1/4"
57mm
10 1/2"
267mm
CUTOUT FOR
RLB, RGB & GD/CPB
A
DETAIL A
11 5/8"
295mm
16 9/16"
420mm
3 5/16"
84mm
2 5/8"
67mm
3 11/16"
94mm
43 1/8"
1095mm
22 5/16"
567mm
25 1/8"
638mm
27 13/16"
707mm
37 1/2"
952mm
39 1/16"
992mm
2 3/4"
70mm
11 13/16"
300mm
2 15/16"
74mm
TDM
7/8"
22mm
TYP.
19"
483mm
33 5/16"
846mm
20"
508mm
CR19 (60Hz) CR19 (60Hz)
RLT Refrigerant Liquid Line Inlet 1/2" O.D. Copper Sweat RLB Refrigerant Liquid Line Inlet 1/2" O.D. Copper Sweat
RGT Refrigerant Gas Line Outlet 5/8" O.D. Copper Sweat RGB Refrigerant Gas Line Outlet 5/8" O.D. Copper Sweat
GD Gravity Coil Pan Drain
CPB Condensate Pump
HVT High Voltage Top Connection
Combination Knockout
1-1/8" (29 mm) & 1-3/4" (44 mm)
HVB
High Voltage Bottom Entrance
(feed through the base of the unit)
Combination Knockout
1-1/8"(29 mm) & 1-3/4" (44 mm)
LVT1
Low Voltage Top Connection (Twisted
Pair)
Knockout Hole Diameter
7/8" (22 mm) 2 places
LVB1
Low Voltage Bottom Connection
(Twisted Pair)
Knockout Hole Diameter
7/8" (22 mm) 2 places
LVT2
Low Voltage Top Connection (Shielded
Cable)
Knockout Hole Diameter
7/8" (22 mm) 2 places
LVB2
Low Voltage Bottom Connection
(Shielded Cable)
Knockout Hole Diameter
7/8" (22 mm) 2 places
TDM Tie Down (Top) Mounting
Hole Diameter
1/8" (3 mm) 4 places
CPT Condensate Pump
Knockout Hole Diameter
1-3/4" (44 mm)
Knockout Hole Diameter
1-3/8" (35 mm)
UNIT TOP CONNECTIONS
UNIT BOTTOM CONNECTIONS

Table of Contents

Other manuals for Vertiv Liebert CRV

Related product manuals