EasyManua.ls Logo

Yamaha EF7000 - Ef7200 De (Can)

Yamaha EF7000
178 pages
Print Icon
To Next Page IconTo Next Page
To Next Page IconTo Next Page
To Previous Page IconTo Previous Page
To Previous Page IconTo Previous Page
Loading...
5-7
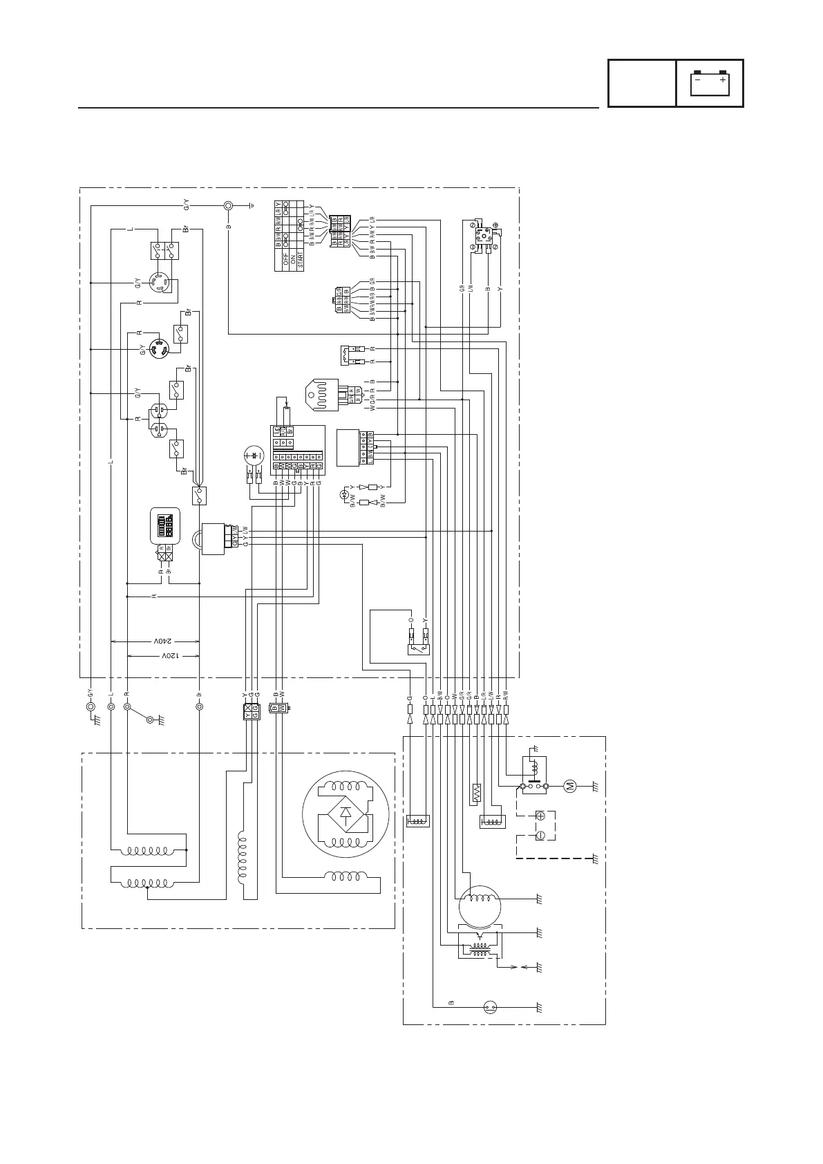
ELEC
CIRCUIT DIAGRAM
2
3
5
6
1
8
7
9
9 9
9
9
0
0
0
q
e
t
y
i
u
o
p
f
d
g
h
j
k
l
;
z
x
c
s
a
w
4
r
EF7200DE (CAN)
1 Generator
2 Rotor assembly
3 Exciter field coil
4 Sub coil
5 Main coil
6 Stator assembly
7 Control box
8 Voltage/hour meter
9 AC switch (N.F.B.)
0 AC receptacle
q Engine switch
w Rectifier
e Remote control terminal
r Fuse
t Rectifier/regulator
y Voltage adjuster
u Condenser
i AVR (Automatic Voltage
Regulator)
o Oil warning unit
p Economy control unit
a Oil warning light
s Economy control switch
d Engine
f Economy control solenoid
g Starter relay
h Starter motor
j Auto choke
k Fuel cut solenoid valve
l Battery
; Charging coil
z TCI unit
x Spark plug
c Oil level switch
Color code
B Black
Br Brown
G Green
L Blue
Lg Light green
O Orange
R Red
W White
Y Yellow
B/W Black/White
G/R Green/Red
G/Y Green/Yellow
L/R Blue/Red
L/W Blue/White
R/B Red/Black
R/G Red/Green
R/W Red/White

Table of Contents

Related product manuals