EasyManua.ls Logo

YASKAWA CACR-JU series - Page 72

YASKAWA CACR-JU series
340 pages
Print Icon
To Next Page IconTo Next Page
To Next Page IconTo Next Page
To Previous Page IconTo Previous Page
To Previous Page IconTo Previous Page
Loading...
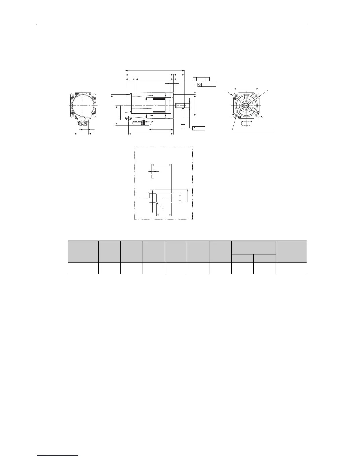
3 Specifications and External Dimensions for Motors
3.2.12 External Dimensions
3-26
(2) With Holding Brakes
450 W
Note: For the specifications of the other shaft ends,
refer to 3.2.12 (3) Shaft End Specifications.
Unit: mm
Note: Models with oil seals are of the same configuration.
R1
S dia.
Q
18 dia.
5
LR
غ90
KB1
KB2
10
5
LM
LL
L
LR
36
70
50
17
38
A
0.04 A
A
0.02
4-6.6 dia.mounting holes
100 dia.
120 dia.
0.04 dia.
80
0
-0.030
S dia.
dia.
79 dia.
Shaft Extension
35 dia.
Unit: mm
Model
SGMGV-
L LL LM LR KB1 KB2
Shaft End
Dimensions
Approx.
Mass
kg
S Q
0582 212 172 136 40 88 160
16
30 4.2
0
–0.011

Table of Contents

Related product manuals