EasyManua.ls Logo

YASKAWA P1000 - Page 37

YASKAWA P1000
256 pages
Print Icon
To Next Page IconTo Next Page
To Next Page IconTo Next Page
To Previous Page IconTo Previous Page
To Previous Page IconTo Previous Page
Loading...
n
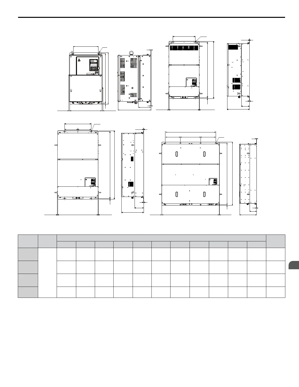
IP00/Open Type Enclosure Drives
Figure 1
W1
4-d
H1
H
H2
Max W2
W
t2
t1
D1
D
D1
D
t2
H1
H2
H
4-d
W1
W
Max W2
t1
Figure 2
D1
D
W
H1
H2
H
6-d
t2
Figure 3
t1
W1
W3
W3
Max W2
Max W2
Max W2
Max W2
Figure 4
W3 W3
8-d
W4
W1
H1
W
H2
D
H
D1
t2
t1
Max W2Max W2
Table 2.6 Dimensions for IP00/Open Type Enclosure: 200 V Class
Drive
Model
Figure
Dimensions mm (in)
Wt. kg
(lb)
W H D W1 W2 H1 H2 D1 t1 t2 d
2A0250A
<1>
1
450
(17.72)
705
(27.76)
330
(12.99)
325
(12.80)
10
(0.39)
680
(26.77)
12
(0.49)
130
(5.12)
3.3
(0.13)
3.3
(0.13)
M10
76
(167.6)
2A0312A
<1>
450
(17.72)
705
(27.76)
330
(12.99)
325
(12.80)
10
(0.39)
680
(26.77)
12
(0.49)
130
(5.12)
3.3
(0.13)
3.3
(0.13)
M10
80
(176.4)
2A0360A
<1>
500
(19.69)
800
(31.50)
350
(13.78)
370
(14.57)
10
(0.39)
773
(30.43)
13
(0.51)
130
(5.12)
4.6
(0.18)
4.6
(0.18)
M12
98
(216.1)
2A0415A
500
(19.69)
800
(31.50)
350
(13.78)
370
(14.57)
10
(0.39)
773
(30.43)
13
(0.51)
130
(5.12)
4.6
(0.18)
4.6
(0.18)
M12
99
(218.3)
<1> Customers may convert these models to IP20/NEMA Type 1 enclosures using an IP20/NEMA Type 1 Kit.
2.1 Mechanical Installation
YASKAWA ELECTRIC TOEP YAIP1U 01B YASKAWA AC Drive - P1000 Quick Start Guide
37
2
Mechanical Installation

Table of Contents

Other manuals for YASKAWA P1000

Related product manuals