EasyManua.ls Logo

ABB NGC8206 - Figure 3-59 6200 Enclosure Pipe-Mounting Installation; Figure 3-60 6700 Enclosure Pipe Mounting Installation

ABB NGC8206
239 pages
Print Icon
To Next Page IconTo Next Page
To Next Page IconTo Next Page
To Previous Page IconTo Previous Page
To Previous Page IconTo Previous Page
Loading...
2
101510 Rev. AG Page 3–
57
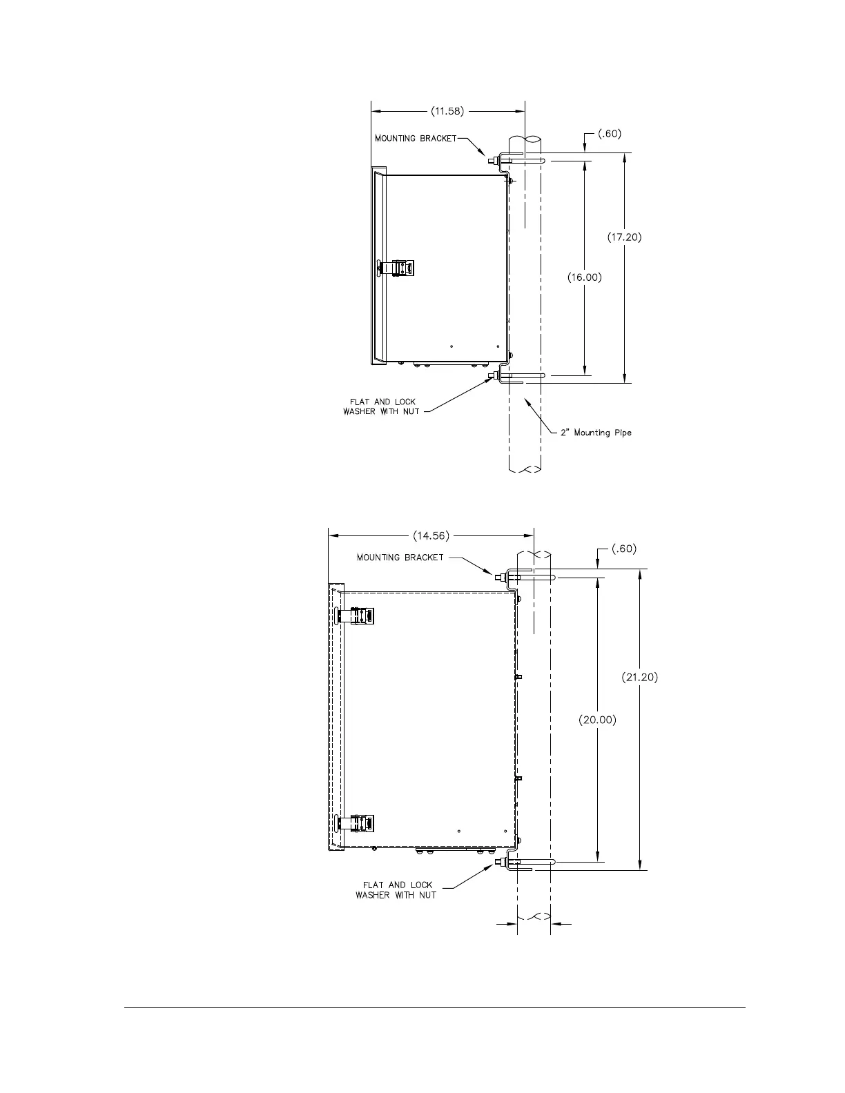
Figure 3-59 6200 Enclosure Pipe-Mounting Installation
Figure 3-60 6700 Enclosure Pipe Mounting Installation
(2.38 O.D.)
2.00 PIPE

Table of Contents

Related product manuals