EasyManua.ls Logo

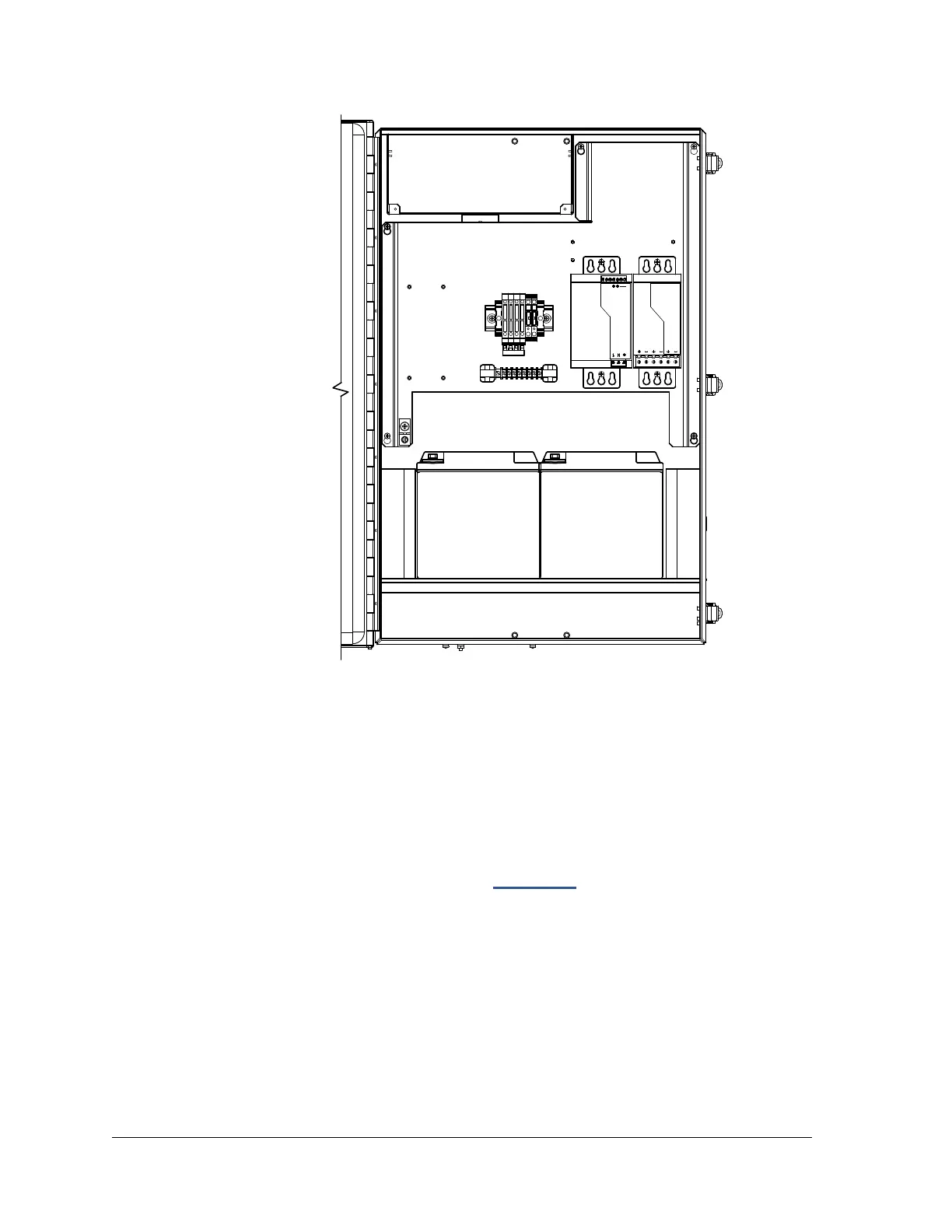
ABB NGC8206 - Explosion-Proof Power Supply (Optional Equipment); Figure 2-31 6800 Enclosure with 115;230 VAC UPS Power Option

ABB NGC8206
239 pages
Print Icon
To Next Page IconTo Next Page
To Next Page IconTo Next Page
To Previous Page IconTo Previous Page
To Previous Page IconTo Previous Page
Loading...
Page 2–40
2101510 Rev. AG
Figure 2-31 6800 Enclosure with 115/230 VAC UPS Power Option
2.19.3 Explosion-Proof Power Supply (Optional Equipment)
For installations requiring an explosion-proof power supply, Totalflow provides two
power supplies (115 VAC and 230 VAC to 12 VDC) that meet these requirements
and are housed in explosion-proof enclosures.
2.19.3.1 Enclosure
The custom designed, explosion-proof enclosure consists of a square shaped cast
aluminum housing, powder coated, with top explosion-proof threaded cap for
access to internal components (see Figure 2-32
).
The top cap has precision-engineered threading and is susceptible to
damage if treated roughly. The top cap is water tight, corrosion resistant
and NEMA 4X rated. Unauthorized removal of the cap is protected with a
TB1, BATT
TB4, SPARE
TB3, SPARE
TB5, SPARE
TB6, SPARE
TB2
BATTERYOUTPUTINPUT
OUTPUT

Table of Contents

Related product manuals