EasyManua.ls Logo

ABB NGC8206 - Figure 3-69 6200 Optional Equipment Enclosure with Power Supply; Figure 3-70 6700 Optional Equipment Enclosure with Power Supply

ABB NGC8206
239 pages
Print Icon
To Next Page IconTo Next Page
To Next Page IconTo Next Page
To Previous Page IconTo Previous Page
To Previous Page IconTo Previous Page
Loading...
Page 3–66
2101510 Rev. AG
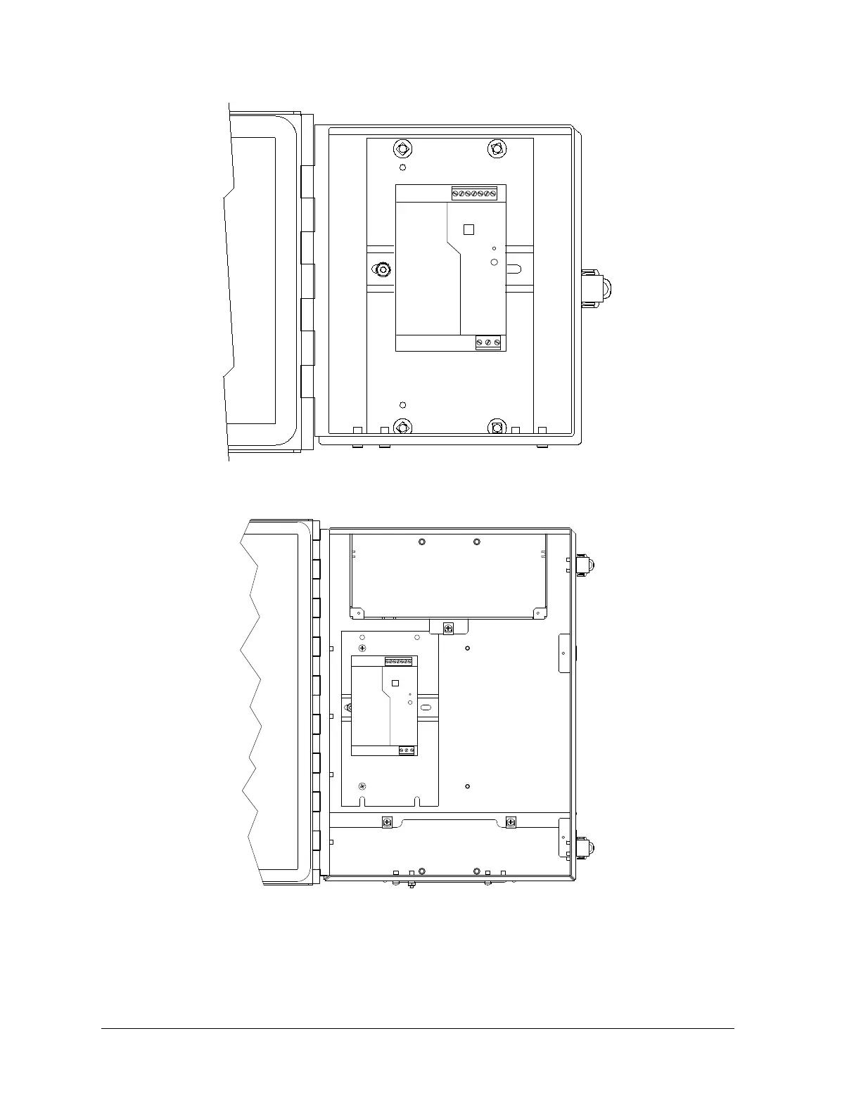
Figure 3-69 6200 Optional Equipment Enclosure with Power Supply
Figure 3-70 6700 Optional Equipment Enclosure with Power Supply
L
N
G
-
+
DC
OK
DC OK
Adjust
11.5-18VDC
+
-
QUINT POWER
PHOENIX
CONTACT
L N
G
-
-
+
+
DC
OK
DC OK
Adjust
11.5
-18VDC
Communication
Shelf

Table of Contents

Related product manuals