EasyManua.ls Logo

ABB NGC8206 - 115;230 VAC UPS Power Supply (24 VDC Systems); Figure 3-64 6800 Enclosure Wall Mounted Installation

ABB NGC8206
239 pages
Print Icon
To Next Page IconTo Next Page
To Next Page IconTo Next Page
To Previous Page IconTo Previous Page
To Previous Page IconTo Previous Page
Loading...
Page 3–60
2101510 Rev. AG
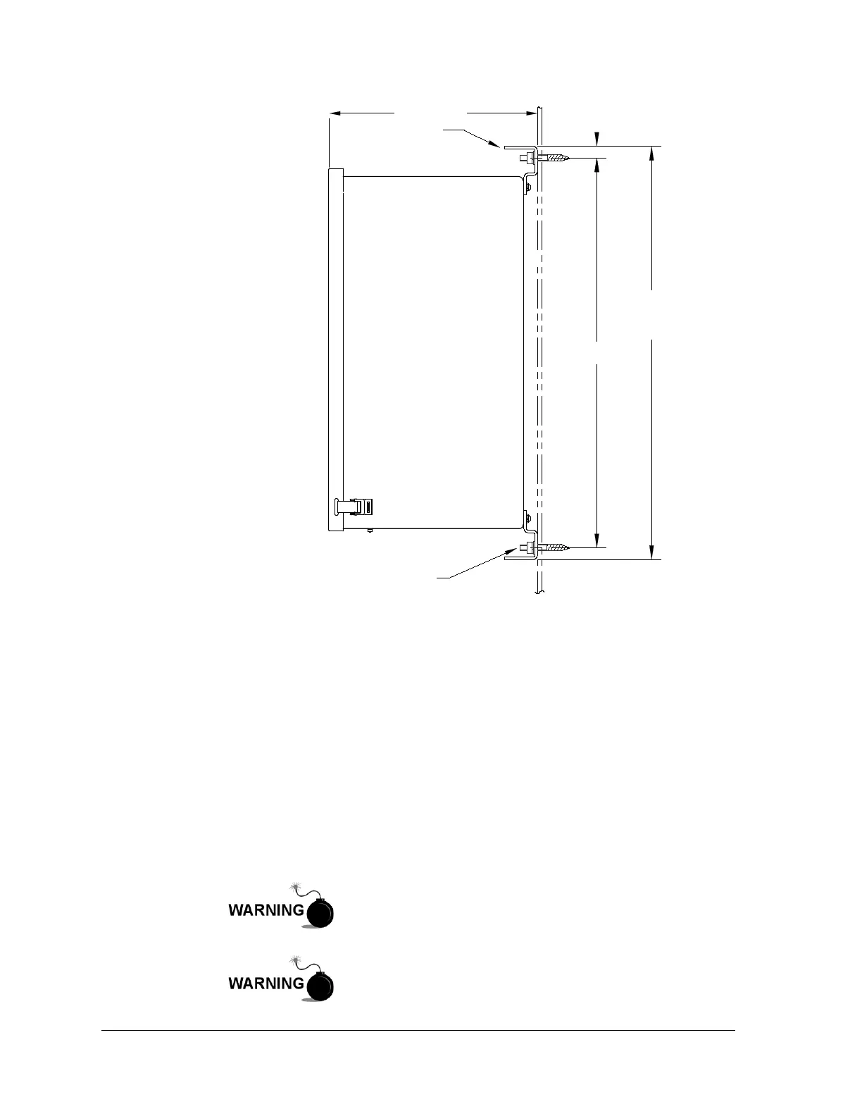
Figure 3-64 6800 Enclosure Wall Mounted Installation
3.29.6.1 Wall Mount Instructions
1) When the unit is received, unpack and inspect all components for evidence
of damage. Report damage to the shipping carrier and to the ABB
Totalflow service department.
2) Using instructions supplied with the mounting kit, attach the bracket to the back
of the enclosure unit.
3) Prepare the wall surface for mounting, and mount the enclosure to the wall.
3.30 115/230 VAC UPS Power Supply (24 VDC Systems)
Before beginning, review the procedure and the materials required for installation.
This power supply may be approved for classified hazardous
locations or potentially explosive atmospheres. Verify the
rating listed on the unit tag, and install per the referenced
control drawing. Be sure to follow the requirements of national
and local codes when installing the power supply.
Installation must be performed by person(s) qualified for the
type and area of installation, according to national and local
codes.
(31.
20")
(30.00)
(.60")
(15.83")
MOUNTING
BRACKET
FLAT AND LOCK WASHER
WITH SCREW

Table of Contents

Related product manuals